206 Rivercrest Lane, Greenwood, (MLS® 202520201) REMAX NOVA
Google Play iOS Google Play iOS

206 Rivercrest Lane, Greenwood

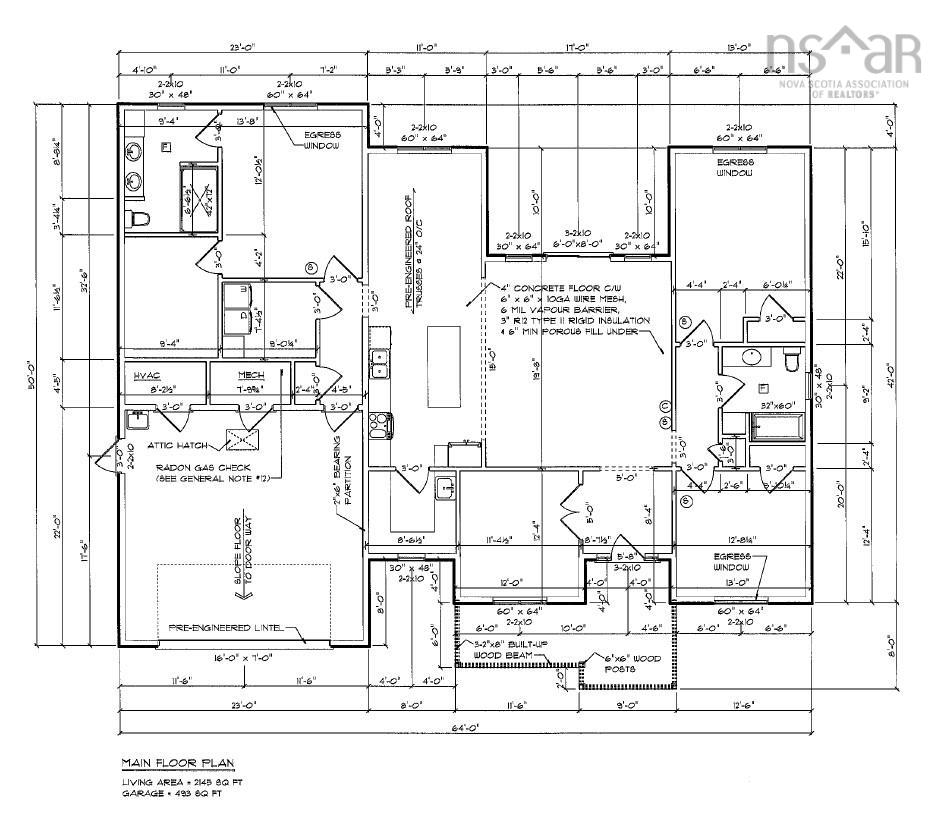
4 2 2145 sqft
$715,000 For Sale

Description

Dreaming of a new construction home? Wait until you see this stunner! Located in popular River Ridge Subdivision, this neighbourhood is known for its close proximity to all Greenwood amenities and attractive well-kept properties. One of the best layouts I’ve ever seen, this home offers over 2100 sq/ft of living space with the convenience of everything being on one level! Nearing the final stages of completion, this home will have plenty of curb appeal with a double concrete driveway, covered patios both front and back, and an eye-catching façade. Enter into a spacious foyer with built in deacons’ bench, leading to the spacious open concept living area perfect for entertaining and everyday family living. Fell right at home in the modern kitchen complete with quartz countertops, included appliance package, and a walk-in butler’s pantry! The primary suite boasts a large walk-in closet with organizers, and a spa like ensuite with glass/tile shower and dual vanity. Two secondary bedrooms are on the opposite end of the home and are both a great size. 9’ ceilings throughout, quality custom made cabinetry in the kitchen, baths, and laundry room, and two efficient heat pumps all add to the appeal. The flex room gives you options for a fourth bedroom, private home office, you decide! The south facing backyard and heated double garage are both a nice touch, and wired for generator with municipal water & sewer connections adds peace of mind. Pack your bags! This home is everything you’ve been wishing for and provides low maintenance, high enjoyment living in one of the best areas in town!

Listing Details

Address
206 Rivercrest Lane, Greenwood, B0P 1R0

Status
ACTIVE
Listing Price
$715,000
MLS®
202520201
Type
Single Family
Style
Detached
Age
0
Square Footage (MLA)
2,145  ft2
Total Fin SqFt (TLA)
2,145  ft2
PID
55552749
Bedrooms
4
Full Baths
2
Half Baths
0

Water
Municipal
Sewer
Municipal
Utilities
Electricity,High Speed Internet,Telephone

Building Specifications

Foundation Type
Slab
Roof
Fibreglass
Exterior Finish
Vinyl
Flooring
Porcelain,Tile,Vinyl Plank

Looking for a Mortgage? Get Your Free Quote Started Today!

Rooms

LEVEL TYPE DIMENSIONS
Main Floor Foyer 8.3x7.7
Main Floor Living Room 18.11x17
Main Floor Kitchen 10.5x19
Main Floor OTHER PANTRY 7.7x8.1
Main Floor Laundry 8.6x7
Main Floor Primary Bedroom 13x15.6
Main Floor Ensuite Bath 1 8.7x11.3
Main Floor OTHER WIC 8.7x11.1
Main Floor Bedroom 17.5x12-JOG
Main Floor Bath 2 7.8x8.8-JOG
Main Floor Bedroom 12x11.7
Main Floor OTHER FLEX 11x11.17
Main Floor Dining Room 10.5x10

Garage & Parking

Garage
Y
Details
Attached, Double, Wired, Heated

Inclusions & Exclusions

Inclusions
Fridge/Stove/Micro/Dishwasher

Sales History

Demographic Data

Demographic data is based on the dissemination area that contains the listing parcel . Dissemination Areas are small areas composed of one or more neighbouring dissemination blocks. All of Canada is divided into dissemination areas. Data source: Environics Analytics via ArcGIS Online, 2021

Population Size

595

Median Age

45.5

Avg Household Size

2.6

Avg House Income

$86K

The number of people for each age range.

How the population of this area is expected to change.

The highest level of education obtained by people within this area.

The maritial status of the people in this area.

The average household income within this area.

The number of people that rent versus own.

When the buildings in the area were constructed.

The number of children at home for the given age ranges.

The occupations of the people living here.

Maps

Mortgage Inquiries

Last Updated On: 8/19/2025 2:39:58 PM (UTC)