16B 16 Gala Drive, Berwick, (MLS® 202521828) REMAX NOVA
Google Play iOS Google Play iOS

16B 16 Gala Drive, Berwick

3 2 1394 sqft
Sold

Description

Welcome to 16 Gala Drive, a beautifully designed 3-bedroom, 2-bath semi-detached home in the lively town of Berwick. Perfectly positioned on a corner lot, this one-level home delivers the convenience and cost savings of a semi while offering enhanced privacy with no shared front façade. Built with modern efficiency in mind, the home features a large heat pump for year-round comfort and an airy open-concept design. At the heart of the home, the kitchen seamlessly flows into the dining and living areas, creating a true great room. A center island makes the kitchen ideal for both everyday living and entertaining guests. Upgraded kitchen appliances are included for a move-in-ready experience. The private primary suite includes a stylish walk-through closet with barn door detailing and a full ensuite bath. Two additional bedrooms and a second bathroom provide comfortable accommodations for family, guests, or a home office. Located within walking distance to Berwick's shops, restaurants, and recreation facility.

Listing Details

Address
16B 16 Gala Drive, Berwick, B0P 1E0

Status
SOLD
Sold Price
Log In
MLS®
202521828
Type
Single Family
Style
Semi-Detached
Age
0
Square Footage (MLA)
1,394  ft2
Total Fin SqFt (TLA)
1,394  ft2
PID
55549836
Bedrooms
3
Full Baths
2
Half Baths
0

Water
Drilled Well
Sewer
Municipal
Utilities
Cable,Electricity,High Speed Internet,Telephone

Building Specifications

Foundation Type
Slab
Roof
Asphalt Shingle
Exterior Finish
Vinyl
Flooring
Laminate

Looking for a Mortgage? Get Your Free Quote Started Today!

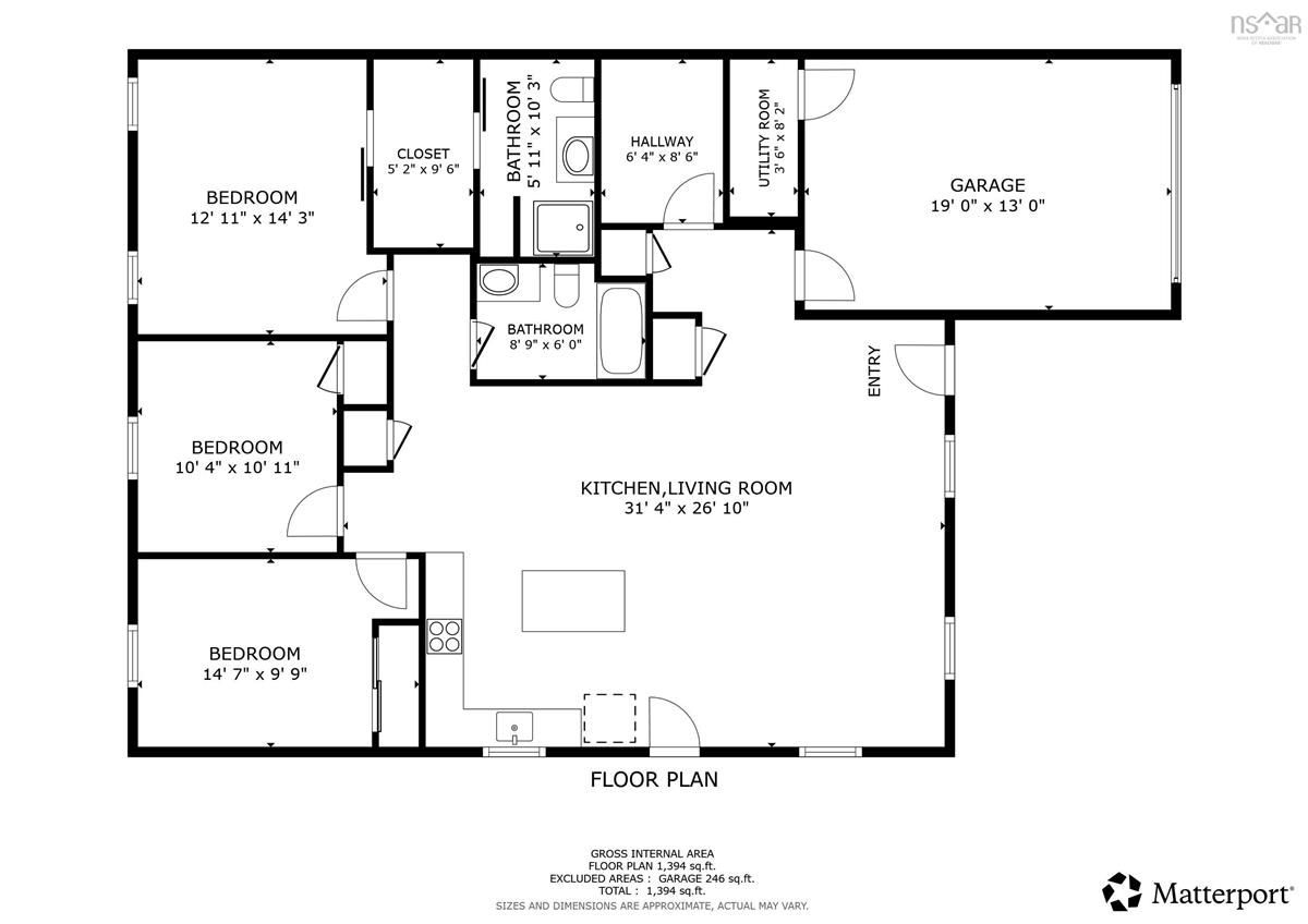
Rooms

LEVEL TYPE DIMENSIONS
Main Floor Dining Room 9'6 x 14'7
Main Floor Kitchen 9'6x10'2
Main Floor Living Room 11'6x18'6
Main Floor Primary Bedroom 12'11x14'3
Main Floor Bath 1 5'11x10'3
Main Floor Laundry 6'4x8'6
Main Floor Bath 2 8'9x6
Main Floor Bedroom 10'4x10'11
Main Floor Bedroom 14'7x9'9
Main Floor Dining Room 9'6 x 14'7
Main Floor Kitchen 9'6x10'2
Main Floor Living Room 11'6x18'6
Main Floor Primary Bedroom 12'11x14'3
Main Floor Bath 1 5'11x10'3
Main Floor Laundry 6'4x8'6
Main Floor Bath 2 8'9x6
Main Floor Bedroom 10'4x10'11
Main Floor Bedroom 14'7x9'9
Main Floor Dining Room 9'6 x 14'7
Main Floor Kitchen 9'6x10'2
Main Floor Living Room 11'6x18'6
Main Floor Primary Bedroom 12'11x14'3
Main Floor Bath 1 5'11x10'3
Main Floor Laundry 6'4x8'6
Main Floor Bath 2 8'9x6
Main Floor Bedroom 10'4x10'11
Main Floor Bedroom 14'7x9'9

Virtual Tour

Garage & Parking

Garage
Y
Details
single, attached

Inclusions & Exclusions

Inclusions
fridge, stove, microwave/hood,dishwasher

Sales History

Demographic Data

Demographic data is based on the dissemination area that contains the listing parcel . Dissemination Areas are small areas composed of one or more neighbouring dissemination blocks. All of Canada is divided into dissemination areas. Data source: Environics Analytics via ArcGIS Online, 2021

Population Size

668

Median Age

47.7

Avg Household Size

2.3

Avg House Income

$83K

The number of people for each age range.

How the population of this area is expected to change.

The highest level of education obtained by people within this area.

The maritial status of the people in this area.

The average household income within this area.

The number of people that rent versus own.

When the buildings in the area were constructed.

The number of children at home for the given age ranges.

The occupations of the people living here.

Tax Assessment

Year Amount % Change
2024 $35,000 ---

Maps

Mortgage Inquiries

Last Updated On: 10/29/2025 12:00:00 AM (UTC)