Lot 98-2 Westchester Road, Sutherlands Lake, (MLS® 202603116) REMAX NOVA
Google Play iOS Google Play iOS

Lot 98-2 Westchester Road, Sutherlands Lake

$89,900 For Sale

Description

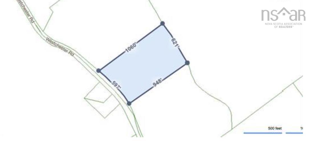
Escape to the peace and quiet of Sutherlands Lake with this expansive 13.75-acre parcel offering endless possibilities. Whether you’re dreaming of building a year-round home, a cozy getaway, or simply investing in land surrounded by nature, this property provides the perfect canvas. Located just minutes from Sutherlands Lake Provincial Park and the popular Sutherlands Lake Trail System, outdoor enthusiasts will love the easy access to snowmobiling, ATVing, fishing, and hiking. The property offers ample privacy, a mix of mature trees, and road access via Westchester Road—making it both convenient and serene. Enjoy the best of rural Nova Scotia living with amenities only a short drive away. Your private piece of paradise awaits!

Listing Details

Address
Lot 98-2 Westchester Road, Sutherlands Lake, B0M 1E0

Status
ACTIVE
Listing Price
$89,900
MLS®
202603116
Type
n/a
Style
---
PID
25369547

Water
None
Sewer
None
Utilities
None

Building Specifications

Foundation Type
---
Roof
---
Exterior Finish
---
Flooring
---

Looking for a Mortgage? Get Your Free Quote Started Today!

Garage & Parking

Garage
---
Details
---

Sales History

Demographic Data

Demographic data is based on the dissemination area that contains the listing parcel . Dissemination Areas are small areas composed of one or more neighbouring dissemination blocks. All of Canada is divided into dissemination areas. Data source: Environics Analytics via ArcGIS Online, 2021

Population Size

420

Median Age

58.3

Avg Household Size

2.1

Avg House Income

$86K

The number of people for each age range.

How the population of this area is expected to change.

The highest level of education obtained by people within this area.

The maritial status of the people in this area.

The average household income within this area.

The number of people that rent versus own.

When the buildings in the area were constructed.

The number of children at home for the given age ranges.

The occupations of the people living here.

Tax Assessment

Year Amount % Change
2024 $2,700 ---
2023 $2,500 ---
2022 $2,500 ---
2021 $2,500 ---
2020 $2,500 ---
2019 $2,500 ---
2018 $2,500 ---
2017 $2,500 ---
2016 $2,300 ---
2015 $2,300 ---
2014 $2,300 ---
2013 $2,300 ---
2012 $2,100 ---

Maps

Mortgage Inquiries

Last Updated On: 2/20/2026 3:24:33 PM (UTC)