Lot 2 359 Seligs Road, Prospect Village, (MLS® 202607779) REMAX NOVA
Google Play iOS Google Play iOS

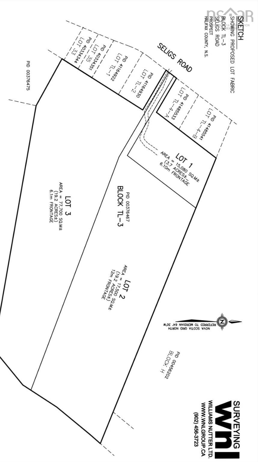
Lot 2 359 Seligs Road, Prospect Village

$299,000 For Sale

Description

Exceptional opportunity to acquire one or both 19-acre parcels in the desirable coastal community of Prospect, just 20 minutes from Bayers Lake and Halifax amenities. This elevated property offers panoramic views over Shad Bay with western exposure, providing stunning sunset vistas across the water. A rare combination of privacy, scale, and ocean views, the land features a mix of mature forest and partially cleared areas, offering multiple potential building sites. Ideal for a private estate, family compound, or future development opportunity (subject to municipal approvals). The natural topography and positioning maximize both views and seclusion, making this a standout offering in today’s market. Features * Panoramic, ocean views of Shad Bay * Western exposure for sunset views * Large acreage parcel (19.2 acres) * Private, treed setting * Existing cleared areas and access routes * 3-min drive to convenience store, farmers market and NSLC, 20-min drive to Halifax, Bayer's Lake, and local amenities Rare offering of large acreage with ocean views within close proximity to Halifax. Ideal for buyers seeking privacy, investment potential, or a signature build site. There are 4 deeded ocean access points

Listing Details

Address
Lot 2 359 Seligs Road, Prospect Village, B3T 2A8

Status
ACTIVE
Listing Price
$299,000
MLS®
202607779
Type
n/a
Style
---
PID
00376467-2

Water
None
Sewer
None
Utilities
None

Building Specifications

Foundation Type
---
Roof
---
Exterior Finish
---
Flooring
---

Looking for a Mortgage? Get Your Free Quote Started Today!

Garage & Parking

Garage
---
Details
---

Sales History

Halifax Regional Municipality Data

Zoning
RRB-1
By-Law Code:
Polling District
Prospect Road – St. Margarets
Concillor: Nancy Hartling
Waste Collection
WEDNESDAY
Contractor: Green For Life

Demographic Data

Demographic data is based on the dissemination area that contains the listing parcel . Dissemination Areas are small areas composed of one or more neighbouring dissemination blocks. All of Canada is divided into dissemination areas. Data source: Environics Analytics via ArcGIS Online, 2021

Population Size

862

Median Age

45.5

Avg Household Size

2.5

Avg House Income

$111K

The number of people for each age range.

How the population of this area is expected to change.

The highest level of education obtained by people within this area.

The maritial status of the people in this area.

The average household income within this area.

The number of people that rent versus own.

When the buildings in the area were constructed.

The number of children at home for the given age ranges.

The occupations of the people living here.

Maps

Mortgage Inquiries

Last Updated On: 4/17/2026 3:19:58 PM (UTC)