Lot 23-2 Park Street, Inverness, (MLS® 202519464) REMAX NOVA
Google Play iOS Google Play iOS

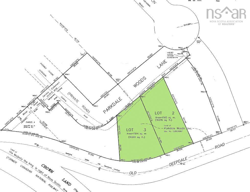
Lot 23-2 Park Street, Inverness

$75,000 For Sale

Description

Only two of the original five lots remain in the coveted Parkdale Woods subdivision – Lots?23 2 and 23 3. These south facing parcels sit on a gentle slope with uninterrupted views toward the Cape Mabou Highlands and glimpses of the Gulf of St. Lawrence. Each lot is fully serviced (municipal water, sewer and power) and ready for a new build. A lifestyle location • Ten minutes on foot leads to Cabot Links golf course and Inverness Beach. • The Inverness Hospital is just a five minute walk away. • The properties border the Celtic Shores Coastal Trail, offering effortless access to miles of hiking and cycling. Why act now? Lots 23 1, 23 4 and 23 5 have already sold, so these two remaining parcels are the final opportunity to secure a building site in this intown development. Combining panoramic vistas, a sun drenched orientation and proximity to both recreation and services, Parkdale Woods offers an exceptional setting for a custom home. Buyers seeking sunset views over the Gulf, walkability to world class golf and beaches, and immediate access to municipal amenities will appreciate the unique appeal of this subdivision.

Listing Details

Address
Lot 23-2 Park Street, Inverness, B0E 1N0

Status
ACTIVE
Listing Price
$75,000
MLS®
202519464
Type
n/a
Style
---
PID
50350073

Water
Municipal
Sewer
Municipal
Utilities
To Be Verified

Building Specifications

Foundation Type
---
Roof
---
Exterior Finish
---
Flooring
---

Looking for a Mortgage? Get Your Free Quote Started Today!

Garage & Parking

Garage
---
Details
---

Sales History

Demographic Data

Demographic data is based on the dissemination area that contains the listing parcel . Dissemination Areas are small areas composed of one or more neighbouring dissemination blocks. All of Canada is divided into dissemination areas. Data source: Environics Analytics via ArcGIS Online, 2021

Population Size

494

Median Age

53.2

Avg Household Size

2.3

Avg House Income

$78K

The number of people for each age range.

How the population of this area is expected to change.

The highest level of education obtained by people within this area.

The maritial status of the people in this area.

The average household income within this area.

The number of people that rent versus own.

When the buildings in the area were constructed.

The number of children at home for the given age ranges.

The occupations of the people living here.

Maps

Mortgage Inquiries

Last Updated On: 8/5/2025 2:01:58 PM (UTC)