8002 Highway 209, Wards Brook, (MLS® 202606775) REMAX NOVA
Google Play iOS Google Play iOS

8002 Highway 209, Wards Brook

4 2 2080 sqft
$574,900 For Sale

Description

LUXURY OCEANFRONT PROPERTY! High on a rugged cliffside overlooking the world-renowned Bay of Fundy, this exceptional 6.5-acre property offers a rare blend of natural beauty, privacy, and versatility with over 440 feet of waterfront! With sweeping, unobstructed ocean views and the soothing rhythm of the tides below, this is coastal living at its finest. The main home is thoughtfully positioned to capture breathtaking panoramas from sunrise to sunset! Whether you're enjoying a quiet morning coffee or entertaining guests, the backdrop is simply unforgettable. Features include a large, well-equipped kitchen, formal dining room, powder room and large living room on the main floor and four bedrooms plus a 4-piece bathroom on the second floor. Adding to the appeal are two detached garages, one with an extra tall bay for larger vehicles, potential workshop space, or hobby use — perfect for those seeking both functionality and flexibility. But wait, there's more! A charming day cottage provides additional space for a artist's studio or quiet space to read. The land itself is a beautiful mix of open space and natural landscape, offering room to roam, garden, or simply take in the coastal surroundings. With 6.5 acres, there is ample opportunity to create your own retreat while enjoying the peace and seclusion this unique setting provides. Whether you're searching for a year-round home, vacation escape, or investment opportunity, this cliffside property overlooking the Bay of Fundy is truly one of a kind.

Listing Details

Address
8002 Highway 209, Wards Brook, B0M 1S0

Status
ACTIVE
Listing Price
$574,900
MLS®
202606775
Type
Single Family
Style
Detached
Age
24
Square Footage (MLA)
2,080  ft2
Total Fin SqFt (TLA)
2,080  ft2
PID
25190075
Bedrooms
4
Full Baths
1
Half Baths
1

Water
Drilled Well
Sewer
Septic
Utilities
Electricity

Building Specifications

Foundation Type
Poured Concrete
Roof
Metal
Exterior Finish
Vinyl
Flooring
Carpet,Hardwood,Tile

Looking for a Mortgage? Get Your Free Quote Started Today!

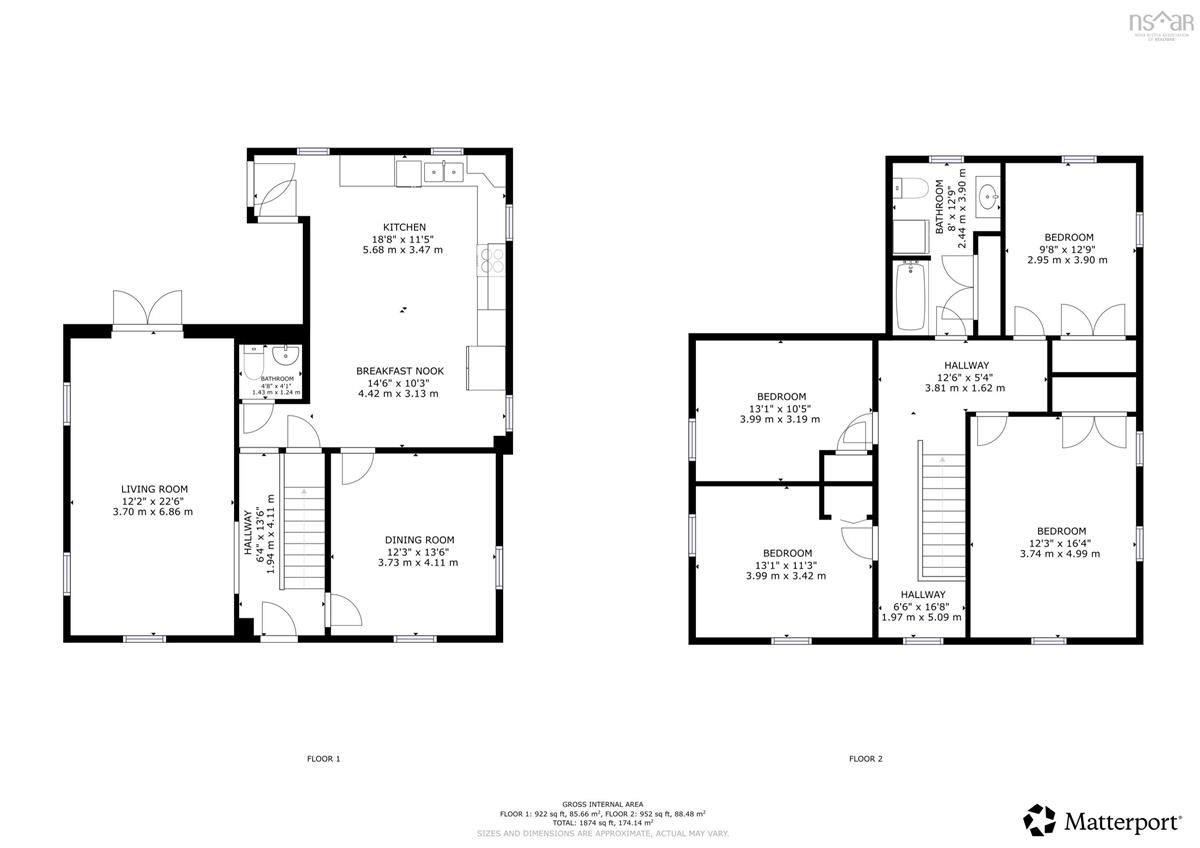
Rooms

LEVEL TYPE DIMENSIONS
Main Floor Kitchen 20.6x14
Main Floor Dining Room 13.4x12
Main Floor Living Room 21.4x12.2
Main Floor Bath 1 12.7x7.10
2nd Level Bath 2 12.7x9.9
2nd Level Primary Bedroom 15.10x12.1
2nd Level Bedroom 12.7x9.9
2nd Level Bedroom 12.3x10.5
2nd Level Bedroom 12.3x10.6

Virtual Tour

Garage & Parking

Garage
Y
Details
2 Detached, Wired garages 50x26 and 34x25

Inclusions & Exclusions

Inclusions
Generac

Sales History

Demographic Data

Demographic data is based on the dissemination area that contains the listing parcel . Dissemination Areas are small areas composed of one or more neighbouring dissemination blocks. All of Canada is divided into dissemination areas. Data source: Environics Analytics via ArcGIS Online, 2021

Population Size

355

Median Age

61.2

Avg Household Size

2.0

Avg House Income

$58K

The number of people for each age range.

How the population of this area is expected to change.

The highest level of education obtained by people within this area.

The maritial status of the people in this area.

The average household income within this area.

The number of people that rent versus own.

When the buildings in the area were constructed.

The number of children at home for the given age ranges.

The occupations of the people living here.

Tax Assessment

Year Amount % Change
2024 $68,500 ---
2023 $66,100 ---
2022 $62,400 ---
2021 $61,600 ---
2020 $61,800 ---
2019 $61,400 ---
2018 $61,400 ---
2017 $61,100 ---
2016 $61,900 ---
2015 $61,300 ---
2014 $119,400 ---
2013 $56,900 ---
2012 $46,900 ---

Maps

Mortgage Inquiries

Last Updated On: 4/9/2026 1:59:48 PM (UTC)