2977 Northfield Road, Upper Northfield, (MLS® 202607211) REMAX NOVA
Google Play iOS Google Play iOS

2977 Northfield Road, Upper Northfield

3 1 865 sqft
$249,900 For Sale

Description

Welcome to 2977 Northfield Road, where comfort meets the tranquility of country living. This home has been upgraded, cleaned, and ready for new owners! Recent improvements include a new heat pump for efficient year-round comfort and A/C, new front steps that enhance curb appeal, a new flue and stove for those who love wood heat. The home also offers exceptional value with several bonus inclusions—a snowblower, push lawnmower, television, and even dishes—making it an ideal turnkey opportunity for first-time buyers, downsizers, or those seeking a fully furnished retreat. The standout feature of this property is its peaceful country setting. Located just a minute up the road from several beautiful lakes, including the well-known Sucker Lake, you’ll enjoy easy access to year-round fishing and outdoor recreation—so close you could almost walk there. If you’re looking for a quiet escape with modern upgrades and unbeatable convenience to nature, this charming property is a must-see.

Listing Details

Address
2977 Northfield Road, Upper Northfield, B4V 4Y8

Status
ACTIVE
Listing Price
$249,900
MLS®
202607211
Type
Single Family
Style
---
Age
42
Square Footage (MLA)
865  ft2
Total Fin SqFt (TLA)
865  ft2
PID
60287372
Bedrooms
3
Full Baths
1
Half Baths
0

Water
Dug,Well
Sewer
Septic
Utilities
Cable,Electricity,High Speed Internet,Telephone

Building Specifications

Foundation Type
Other
Roof
Asphalt Shingle
Exterior Finish
Steel
Flooring
Carpet,Laminate,Vinyl

Looking for a Mortgage? Get Your Free Quote Started Today!

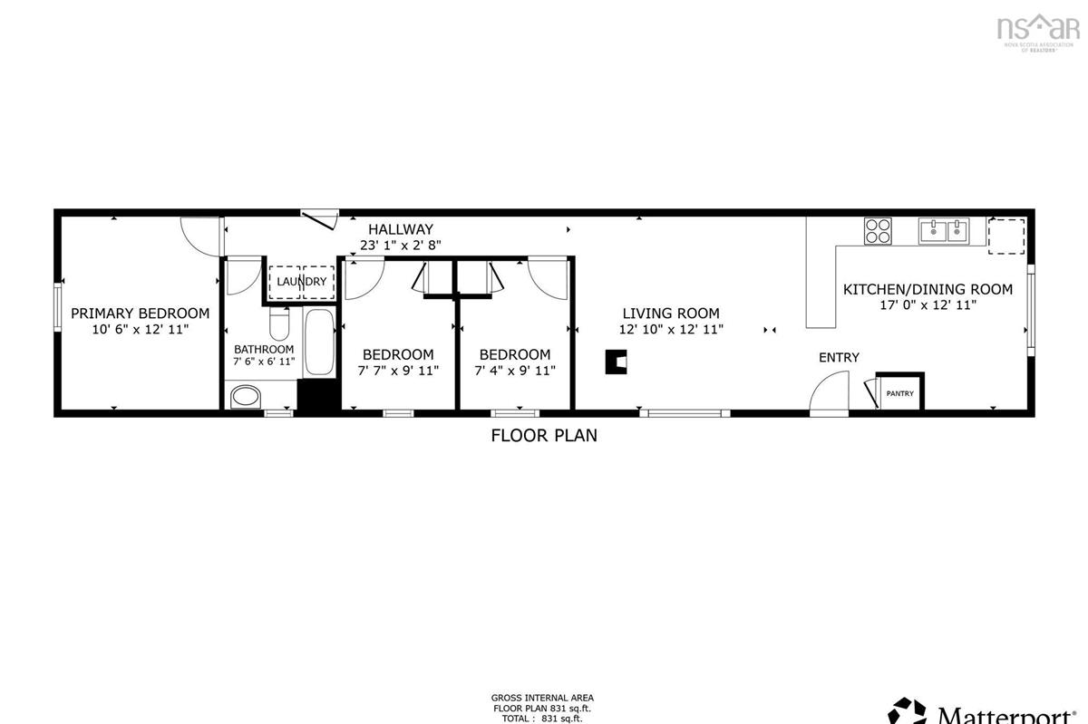
Rooms

LEVEL TYPE DIMENSIONS
Main Floor Kitchen 15'5 x 12'1
Main Floor Living Room 15'6 x 12'1
Main Floor Bedroom 10 x 7'10
Main Floor Bath 1 7'1 x 7'10
Main Floor Bedroom 10 x 7'10
Main Floor Bedroom 10'10 x 10'3
Main Floor Laundry 7'1 x 7'10
Main Floor Kitchen 15'5 x 12'1
Main Floor Living Room 15'6 x 12'1
Main Floor Bedroom 10 x 7'10
Main Floor Bath 1 7'1 x 7'10
Main Floor Bedroom 10 x 7'10
Main Floor Bedroom 10'10 x 10'3
Main Floor Laundry 7'1 x 7'10
Main Floor Kitchen 15'5 x 12'1
Main Floor Living Room 15'6 x 12'1
Main Floor Bedroom 10 x 7'10
Main Floor Bath 1 7'1 x 7'10
Main Floor Bedroom 10 x 7'10
Main Floor Bedroom 10'10 x 10'3
Main Floor Laundry 7'1 x 7'10
Main Floor Kitchen 15'5 x 12'1
Main Floor Living Room 15'6 x 12'1
Main Floor Bedroom 10 x 7'10
Main Floor Bath 1 7'1 x 7'10
Main Floor Bedroom 10 x 7'10
Main Floor Bedroom 10'10 x 10'3
Main Floor Laundry 7'1 x 7'10

Virtual Tour

Garage & Parking

Garage
N
Details
---

Sales History

Demographic Data

Demographic data is based on the dissemination area that contains the listing parcel . Dissemination Areas are small areas composed of one or more neighbouring dissemination blocks. All of Canada is divided into dissemination areas. Data source: Environics Analytics via ArcGIS Online, 2021

Population Size

468

Median Age

53.3

Avg Household Size

2.3

Avg House Income

$87K

The number of people for each age range.

How the population of this area is expected to change.

The highest level of education obtained by people within this area.

The maritial status of the people in this area.

The average household income within this area.

The number of people that rent versus own.

When the buildings in the area were constructed.

The number of children at home for the given age ranges.

The occupations of the people living here.

Tax Assessment

Year Amount % Change
2024 $78,000 ---
2023 $75,500 ---
2022 $61,300 ---
2021 $53,800 ---
2020 $56,400 ---
2019 $58,800 ---
2018 $60,500 ---
2017 $66,600 ---
2016 $67,400 ---
2015 $57,600 ---
2014 $56,400 ---
2013 $55,400 ---
2012 $45,300 ---

Maps

Mortgage Inquiries

Last Updated On: 4/13/2026 4:43:23 PM (UTC)