141/143 Timberland Road, South Range, (MLS® 202524456) REMAX NOVA
Google Play iOS Google Play iOS

141/143 Timberland Road, South Range

7 5 5162 sqft
$1,349,500 For Sale

Description

Live the dream at 141 and 143 Timberland Trail, located on nearly 9 acres with approximately 494 feet of water frontage on desired Porters Lake. This lake is located 15 minutes to the town of Digby and is the perfect lake to swim, fish and boat on. This property features a main house, separate apartment and detached, year round ,waterfront cabin, all with their own kitchens and living spaces. The outside spaces are plentiful and welcoming with covered porches, outside fireplaces, play and entertainment areas, beautifully landscaped lawns and gardens and a beach and dock area. Inside the main house you will be greeted by fantastic views from every room, open kitchen, living and dining. A main floor primary suite with a 4 piece bath and walk in closet. There is also a large family room with a pool table and bar in place. On the upper level 3 additional bedrooms and another full bath. The upstairs apartment holds 1.5 baths, two bedrooms and a kitchen and living room, again with spectacular views. There is also a double attached, heated and wired garage, dog run and house, 2 story boathouse, 400 Amp power entrance, wine cellar, in floor heat and the most amazing sunsets. Being offered mostly furnished and with all appliances and guest space essentials!

Listing Details

Address
141/143 Timberland Road, South Range, B0W 1H0

Status
ACTIVE
Listing Price
$1,349,500
MLS®
202524456
Type
Single Family
Style
Detached
Age
15
Square Footage (MLA)
5,162  ft2
Total Fin SqFt (TLA)
5,162  ft2
PID
30156772
Bedrooms
7
Full Baths
4
Half Baths
1

Water
Pond/Lake
Sewer
Septic
Utilities
Electricity,High Speed Internet,Telephone

Building Specifications

Foundation Type
Slab
Roof
Asphalt Shingle,Metal
Exterior Finish
Wood Shingles,Stone
Flooring
Ceramic,Laminate,Softwood

Looking for a Mortgage? Get Your Free Quote Started Today!

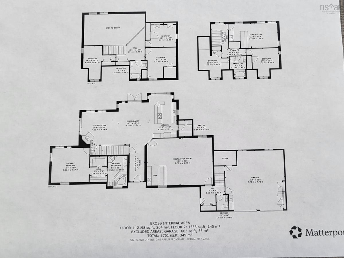
Rooms

LEVEL TYPE DIMENSIONS
Main Floor Porch 16.5 x 7.6
Main Floor Bath 2 6.3 x 4.8
Main Floor Family Room 28 x 20
Main Floor Kitchen 19.5 x 10
Main Floor Dining Room 18 x 13
Main Floor Living Room 16 x 14
Main Floor Primary Bedroom 16 x 14.7
Main Floor Laundry/Bath 10 x 7
Main Floor Ensuite Bath 1 12.6 x 8.3
Main Floor Kitchen 14.9 x 15
Main Floor Bath 2 7.8 x 4.4
Main Floor Bedroom 10 x 9.5
2nd Level Bedroom 8.3 x 15 - 7 x 2
2nd Level Bedroom 13.6 x 6.4 + 5.8 x 7.6
2nd Level Bedroom 7.6 x 11.11
2nd Level Bath 1 8 x 5 + 3.6 x 2.4
2nd Level Den/Office 8 x 11
2nd Level Kitchen 21.6 x 11.6 - 3 x 2
2nd Level Bedroom 12 x 5 + 4 x 5 + 5 x 3
2nd Level Bedroom 7 x 4 + 3 x 6 + 5 x 6
2nd Level Bath 1 10 x 5

Garage & Parking

Garage
Y
Details
Attached 2 car.

Inclusions & Exclusions

Inclusions
Furnishings and contents for cottages and suite, most furnishings in house

Sales History

Demographic Data

Demographic data is based on the dissemination area that contains the listing parcel . Dissemination Areas are small areas composed of one or more neighbouring dissemination blocks. All of Canada is divided into dissemination areas. Data source: Environics Analytics via ArcGIS Online, 2021

Population Size

555

Median Age

50.5

Avg Household Size

2.2

Avg House Income

$75K

The number of people for each age range.

How the population of this area is expected to change.

The highest level of education obtained by people within this area.

The maritial status of the people in this area.

The average household income within this area.

The number of people that rent versus own.

When the buildings in the area were constructed.

The number of children at home for the given age ranges.

The occupations of the people living here.

Tax Assessment

Year Amount % Change
2024 $578,000 ---
2023 $428,000 ---
2022 $367,600 ---
2021 $353,200 ---
2020 $347,300 ---
2019 $335,000 ---
2018 $320,900 ---
2017 $311,800 ---
2016 $310,400 ---
2015 $307,500 ---
2014 $605,800 ---
2013 $265,900 ---
2012 $233,500 ---

Maps

Mortgage Inquiries

Last Updated On: 10/28/2025 1:34:53 PM (UTC)