18 Mahar Drive, Shad Bay, (MLS® 202528870) REMAX NOVA
Google Play iOS Google Play iOS

18 Mahar Drive, Shad Bay

3 3 4568 sqft
$1,195,000 For Sale

Description

OPEN HOUSE MARCH 15th 2-4pm - NOTE Lower level also has approx. 1404 of square feet / Garage is 648 Square feet - Welcome to 18 Mahar Drive in the very sought after Shad Bay Subdivision. This beautiful executive home truly is a “hallmark card” property—charming, pristine, and impeccably maintained. Not only is the footprint large, but each room offers so much to the growing family, extended families and the teenager/young adult years!! Walk through the front door to the curved staircase, incredible chefs kitchen with sitting area, that is bright all day long and spacious, with many upgrades to the kitchen in 2020 - butchers block countertops, painted cabinetry and new farm sink! 2021 we saw 2 heat pumps installed with 3 heads, and a new Roof. 2022 was a new front deck, installed laminate hardware in 2 bedrooms and house was hard wired for a generator. 2023 the sellers had the 2 back decks refurbished, and an upgraded patio door in the living room. 2024 the lawn was expanded by 6000 square feet and by 2025 we see new sinks in upstairs bathrooms, laminate floors and hardwood flooring, new hot water tank and central vac and freshly painted! This beautiful executive style home is a hallmark card - so pretty and so well cared for by the present owners. The loft above the double attached garage offers incredible flexibility as a teen retreat, in-law suite, home office, or gym, and is already wired for high-speed internet. Cozy, welcoming, spacious, and full of character, this exceptional Prospect Community home also boasts something truly special—an ocean view.

Listing Details

Address
18 Mahar Drive, Shad Bay, B3T 2B6

Status
ACTIVE
Listing Price
$1,195,000
MLS®
202528870
Type
Single Family
Style
Detached
Age
40
Square Footage (MLA)
3,164  ft2
Total Fin SqFt (TLA)
4,568  ft2
PID
40048878
Bedrooms
3
Full Baths
2
Half Baths
1

Water
Drilled Well
Sewer
Septic
Utilities
Cable,Electricity,High Speed Internet,Telephone

Building Specifications

Foundation Type
Poured Concrete
Roof
Asphalt Shingle
Exterior Finish
Brick,Wood Siding
Flooring
Carpet,Hardwood,Laminate,Tile

Looking for a Mortgage? Get Your Free Quote Started Today!

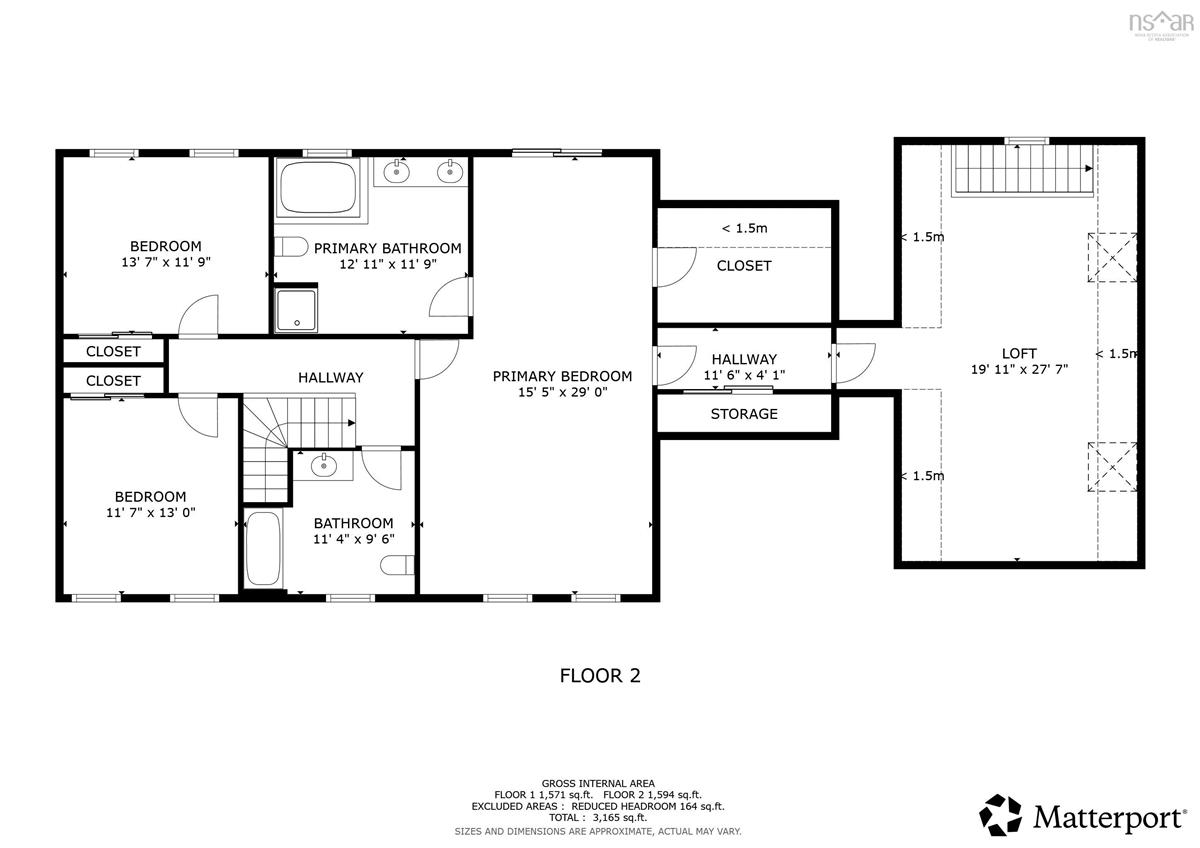
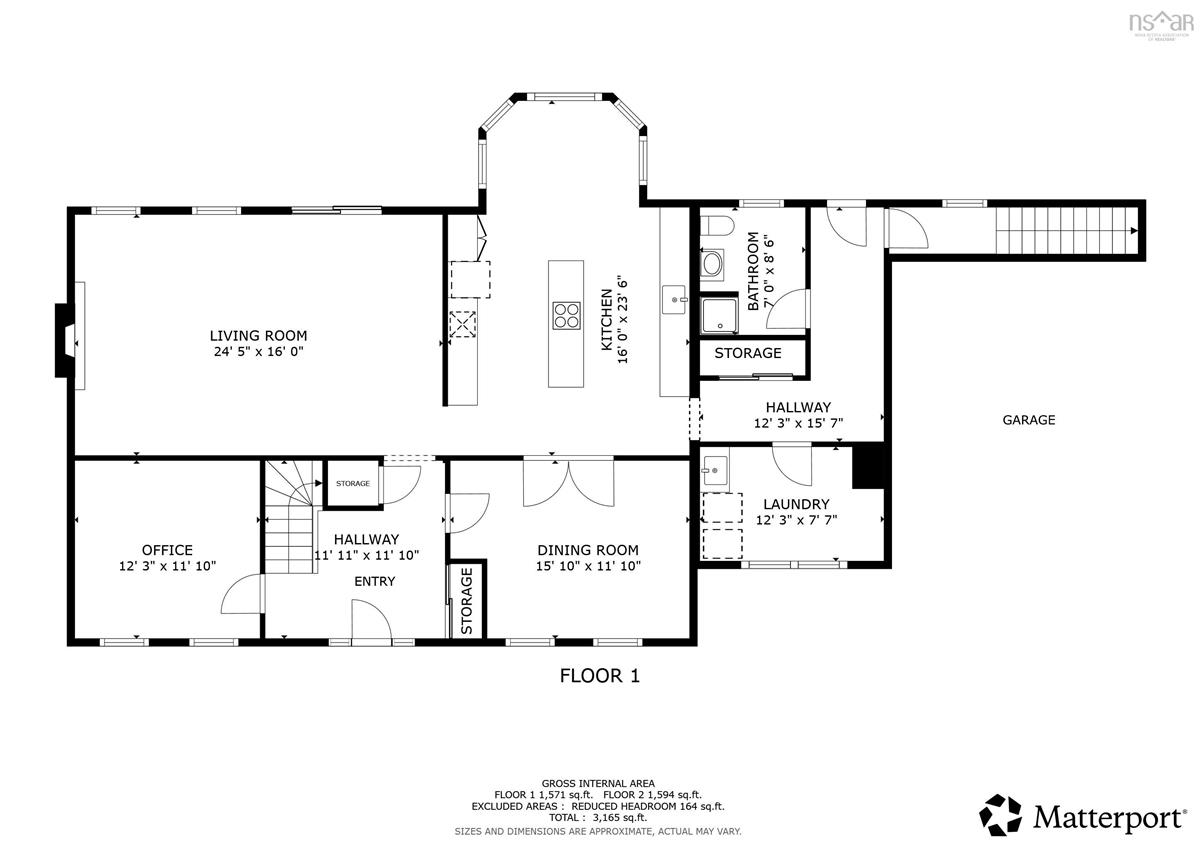
Rooms

LEVEL TYPE DIMENSIONS
Main Floor Living Room 24.5X16
Main Floor Kitchen 16X23.6
Main Floor Dining Room 15.10X11.10
Main Floor Laundry 12.3X7.7
Main Floor Bath 1 7X8.6
Main Floor Den/Office 12.3X11.10
Main Floor OTHER 12.3X15.7 LOWER HALLWAY
Main Floor Living Room 24.5X16
Main Floor Kitchen 16X23.6
Main Floor Dining Room 15.10X11.10
Main Floor Laundry 12.3X7.7
Main Floor Bath 1 7X8.6
Main Floor Den/Office 12.3X11.10
Main Floor OTHER 12.3X15.7 LOWER HALLWAY
2nd Level Primary Bedroom 15.5X29
2nd Level Ensuite Bath 1 12.11X11.9
2nd Level Bedroom 11.7X13
2nd Level Bath 2 11.4X9.6
2nd Level Bedroom 13.7X11.7
2nd Level OTHER 11.6X4.1 HALLWAY
2nd Level OTHER 19.11X27.7 LOFT
2nd Level Primary Bedroom 15.5X29
2nd Level Ensuite Bath 1 12.11X11.9
2nd Level Bedroom 11.7X13
2nd Level Bath 2 11.4X9.6
2nd Level Bedroom 13.7X11.7
2nd Level OTHER 11.6X4.1 HALLWAY
2nd Level OTHER 19.11X27.7 LOFT

Garage & Parking

Garage
Y
Details
Attached, double

Inclusions & Exclusions

Inclusions
All appliances

Sales History

Halifax Regional Municipality Data

Zoning
RB-1
By-Law Code:
Polling District
Prospect Road – St. Margarets
Concillor: Nancy Hartling
Waste Collection
WEDNESDAY
Contractor: Green For Life

Demographic Data

Demographic data is based on the dissemination area that contains the listing parcel . Dissemination Areas are small areas composed of one or more neighbouring dissemination blocks. All of Canada is divided into dissemination areas. Data source: Environics Analytics via ArcGIS Online, 2021

Population Size

1047

Median Age

46.1

Avg Household Size

2.7

Avg House Income

$121K

The number of people for each age range.

How the population of this area is expected to change.

The highest level of education obtained by people within this area.

The maritial status of the people in this area.

The average household income within this area.

The number of people that rent versus own.

When the buildings in the area were constructed.

The number of children at home for the given age ranges.

The occupations of the people living here.

Tax Assessment

Year Amount % Change
2024 $470,300 ---
2023 $430,700 ---
2022 $334,700 ---
2021 $312,600 ---
2020 $313,900 ---
2019 $313,000 ---
2018 $314,200 ---
2017 $317,300 ---
2016 $329,000 ---
2015 $346,700 ---
2014 $348,300 ---
2013 $342,400 ---
2012 $333,100 ---

Maps

Mortgage Inquiries

Last Updated On: 3/4/2026 6:05:23 PM (UTC)