55 Dan R Drive, Pugwash, (MLS® 202602964) REMAX NOVA
Google Play iOS Google Play iOS

55 Dan R Drive, Pugwash

3 2 2428 sqft
$369,900 For Sale

Description

OCEANVIEW 3-bedroom home sits on a beautiful lot and offers the perfect layout for a growing family or empty nesters looking for the convenience of main-floor living. Energy efficient and well designed, this property combines comfort, function, and an unbeatable location. Enter through the main patio door into a welcoming living room that flows into a well-appointed eat-in kitchen. The deck, ideal spot for entertaining, family gatherings, or simply enjoying the incredible views. The home offers a large primary bedroom, featuring a large walk-in closet and a private ensuite. The opposite end of the home offers excellent separation with a second spacious bedroom with gym space, an additional bedroom/office space, laundry area, and a full bathroom. Enjoy stunning ocean views and unforgettable sunsets right from your own property. Outside, you’ll find a second structure that was previously used as a garage, offering great storage or potential guest house! One of the best features of this property is the deeded access to a fabulous beach on the Northumberland Strait, along with quick access to a public beach if desired. Septic system will be upgraded prior to closing.

Listing Details

Address
55 Dan R Drive, Pugwash, B0K 1L0

Status
ACTIVE
Listing Price
$369,900
MLS®
202602964
Type
Single Family
Style
Detached
Age
2012
Square Footage (MLA)
1,214  ft2
Total Fin SqFt (TLA)
2,428  ft2
PID
25153313
Bedrooms
3
Full Baths
2
Half Baths
0

Water
Well
Sewer
Septic
Utilities
Cable,Electricity,High Speed Internet,Telephone

Building Specifications

Foundation Type
Poured Concrete
Roof
Asphalt Shingle
Exterior Finish
Vinyl
Flooring
Hardwood,Tile

Looking for a Mortgage? Get Your Free Quote Started Today!

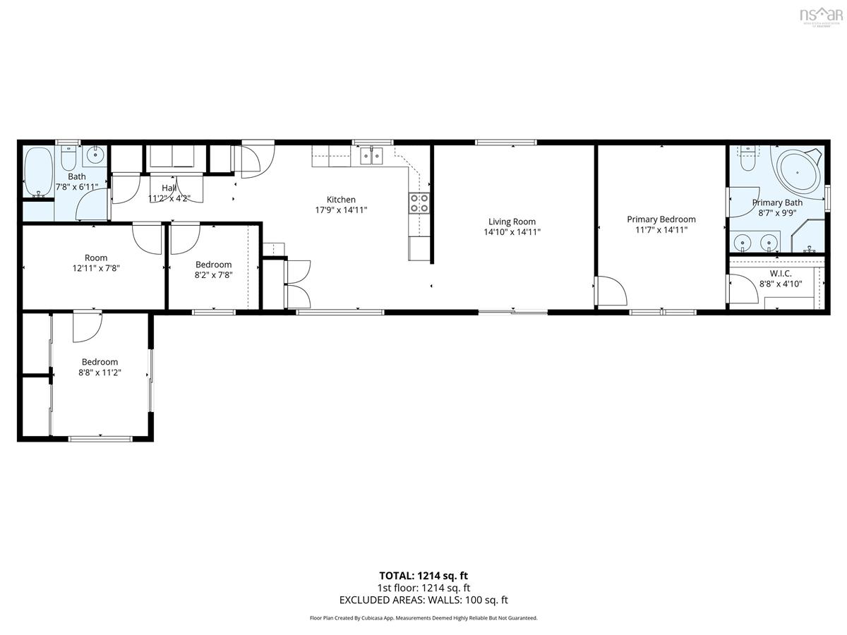
Rooms

LEVEL TYPE DIMENSIONS
Main Floor Kitchen 17.9x14.11
Main Floor Living Room 14.10x14.11
Main Floor Primary Bedroom 11.7x14.11
Main Floor Ensuite Bath 1 8.7x9.9
Main Floor Storage 8.8x4.10
Main Floor Bedroom 8.2x7.8
Main Floor Den/Office 12.11x7.8
Main Floor Bedroom 8.8x11.2
Main Floor Bath 1 7.8x6.11

Garage & Parking

Garage
Y
Details
second building

Sales History

Demographic Data

Demographic data is based on the dissemination area that contains the listing parcel . Dissemination Areas are small areas composed of one or more neighbouring dissemination blocks. All of Canada is divided into dissemination areas. Data source: Environics Analytics via ArcGIS Online, 2021

Population Size

590

Median Age

64.8

Avg Household Size

1.9

Avg House Income

$93K

The number of people for each age range.

How the population of this area is expected to change.

The highest level of education obtained by people within this area.

The maritial status of the people in this area.

The average household income within this area.

The number of people that rent versus own.

When the buildings in the area were constructed.

The number of children at home for the given age ranges.

The occupations of the people living here.

Tax Assessment

Year Amount % Change
2024 $261,700 ---
2023 $240,900 ---
2022 $217,900 ---
2021 $191,500 ---
2020 $175,700 ---
2019 $167,400 ---
2018 $169,200 ---
2017 $171,000 ---
2016 $173,800 ---
2015 $177,300 ---
2014 $342,200 ---
2013 $162,800 ---
2012 $21,600 ---

Maps

Mortgage Inquiries

Last Updated On: 2/18/2026 4:42:44 PM (UTC)