359 Seligs Road, Prospect, (MLS® 202607761) REMAX NOVA
Google Play iOS Google Play iOS

359 Seligs Road, Prospect

5 4 5646 sqft
$1,199,500 For Sale

Description

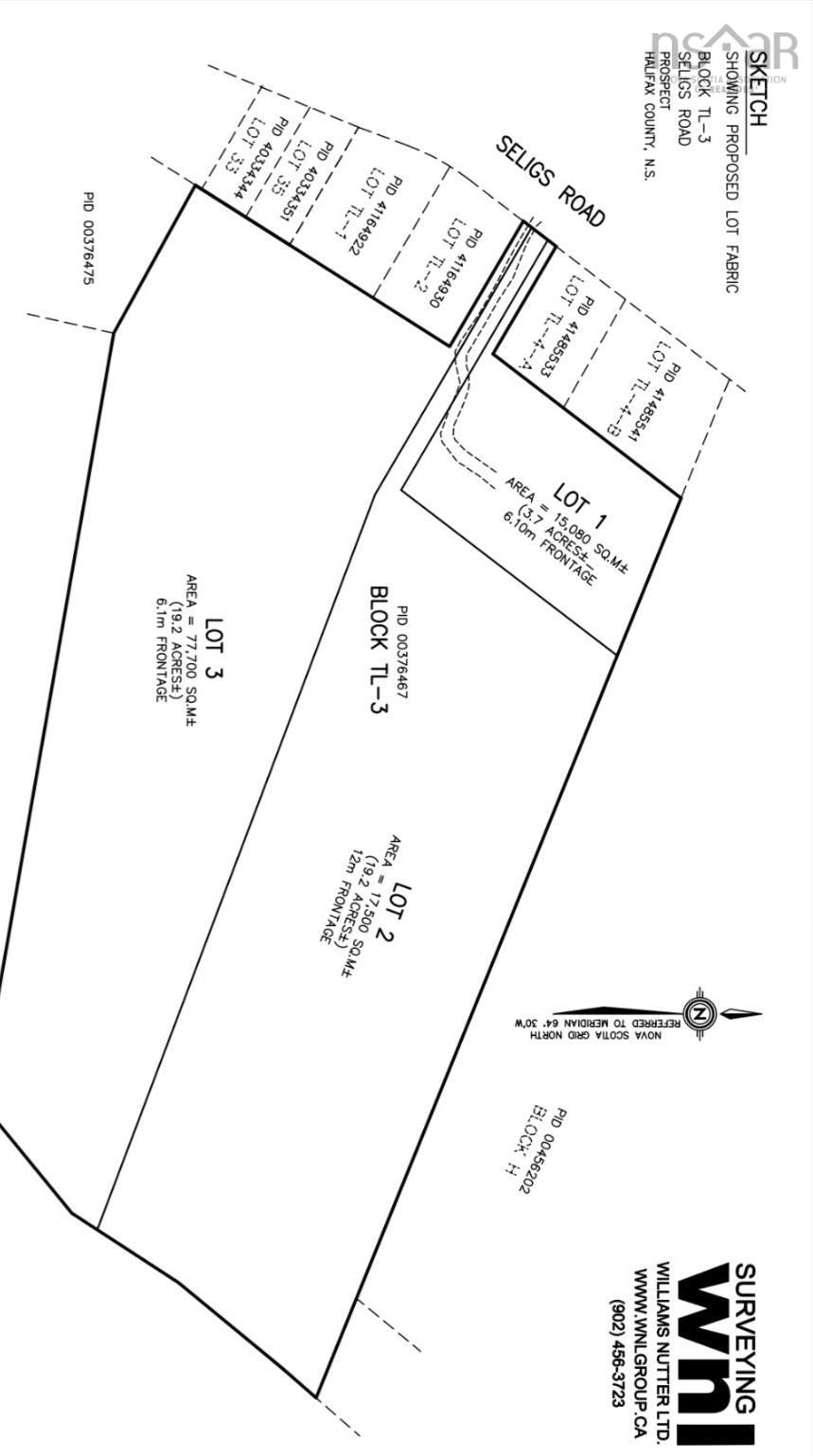
Welcome to this beautifully updated 14-year-old home set on a private 3.7-acre lot with stunning views of Prospect Bay. Offering an impressive 5,646 sq. ft. of living space, this 5-bedroom, 4-bathroom property is thoughtfully designed for modern living, including a fully self contained in-law suite, perfect for multi-generational families or added income potential. Efficiency meets comfort with three sources of heat and a fully solar powered system, keeping monthly utility costs exceptionally low. The main living space is both warm and inviting, featuring vaulted ceilings and a striking floor to ceiling stone fireplace. The kitchen is well appointed with a walk-in pantry, while the spacious primary suite offers a walk-in closet and a beautiful ensuite bath. Designed for both relaxation and entertaining, the lower level boasts an expansive gym, bar, and theatre area, creating the ultimate recreational retreat. Step outside to enjoy the hot tub, outdoor firepit with multiple seating areas, greenhouse, and generous green space, all enhancing the home’s peaceful, lifestyle focused setting. Extensive upgrades have been completed, including additional heat pumps, a new on demand boiler system, and a water softener with reverse osmosis. A newly built, double-detached heated garage with two bay doors and a workshop area adds exceptional functionality. This is truly a turnkey property with no detail overlooked, offering the charm of country living just minutes from the city, and the rare benefit of little to no monthly heating or power costs. Note: The home currently sits on a larger parcel, with an approved subdivision in place to retain 3.7 acres with the home. Subdivision to be completed prior to closing. Two additional lots of 19.2 acres a piece will also be available for purchase.

Listing Details

Address
359 Seligs Road, Prospect, B3T 2A8

Status
ACTIVE
Listing Price
$1,199,500
MLS®
202607761
Type
Single Family
Style
Detached
Age
14
Square Footage (MLA)
3,285  ft2
Total Fin SqFt (TLA)
5,646  ft2
PID
00376467
Bedrooms
5
Full Baths
3
Half Baths
1

Water
Drilled Well
Sewer
Septic
Utilities
Cable,Electricity,High Speed Internet,Telephone

Building Specifications

Foundation Type
Poured Concrete
Roof
Asphalt Shingle
Exterior Finish
Vinyl
Flooring
Hardwood,Laminate,Tile

Looking for a Mortgage? Get Your Free Quote Started Today!

Rooms

LEVEL TYPE DIMENSIONS
Lower Level Bath 2 14'.6'' x 5'.7'' /40"
Lower Level Rec Room 14'.7'' x 22'.9'' /Open
Lower Level Games Room 36'.11'' x 17'.1" /Open
Lower Level Great Room 32'.2'' x 14'.4'' /Open
Lower Level Storage 3'.1'' x 9'.5'' /45"
Lower Level Utility 16'.1" x 14'.4" /Open
Lower Level Workshop 22'.6" x 15'.9" + Jog /Open
Lower Level Workshop 22'.6" x 15'.9" + Jog /Open
Lower Level Bath 4 10'.9" x 12'.3" /Open
Main Floor Foyer 12' x 7'.10" /95"
Main Floor Family Room 18'.1" x 23'.5'' -jog /Open
Main Floor Kitchen 18'.5' x 11'.9'' /46.8
Main Floor Dining Room 17'.1'' x 11'.5'' /59''
Main Floor Laundry 10'.1'' x 7' /N/A
Main Floor Primary Bedroom 15'.1'' x 15'.2'' /40"
Main Floor Storage 6' x 10'.7" /40"
Main Floor Ensuite Bath 1 14'.7'' x 6'.1'' /N/A
Main Floor Bedroom 11'.5'' x 10'.9'' /40"
Main Floor Bedroom 11'.5'' x 10'.7'' /40''
Main Floor Bedroom 10'.8'' x 11'.5'' /40"
Main Floor Eat In Kitchen 13'.8" x 8'.4" /Open
Main Floor Bath 3 8'.1" x 7'.11" - jog /45"
Main Floor Bedroom 11'.1" x 9'.9" /45"
Main Floor Foyer 12' x 7'.10" /95"
Main Floor Family Room 18'.1" x 23'.5'' -jog /Open
Main Floor Kitchen 18'.5' x 11'.9'' /46.8
Main Floor Dining Room 17'.1'' x 11'.5'' /59''
Main Floor Laundry 10'.1'' x 7' /N/A
Main Floor Primary Bedroom 15'.1'' x 15'.2'' /40"
Main Floor Storage 6' x 10'.7" /40"
--- --- 14'.7'' x 6'.1'' /N/A
--- --- 11'.5'' x 10'.9'' /40"
--- --- 11'.5'' x 10'.7'' /40''
--- --- 10'.8'' x 11'.5'' /40"
--- --- 14'.6'' x 5'.7'' /40"
--- --- 14'.7'' x 22'.9'' /Open
--- --- 36'.11'' x 17'.1" /Open
--- --- 32'.2'' x 14'.4'' /Open
--- --- 3'.1'' x 9'.5'' /45"
--- --- 13'.8" x 8'.4" /Open
--- --- 8'.1" x 7'.11" - jog /45"
--- --- 11'.1" x 9'.9" /45"
--- --- 16'.1" x 14'.4" /Open
--- --- 22'.6" x 15'.9" + Jog /Open
--- --- 22'.6" x 15'.9" + Jog /Open
--- --- 10'.9" x 12'.3" /Open
--- --- 12' x 7'.10" /95"
--- --- 18'.1" x 23'.5'' -jog /Open
--- --- 18'.5' x 11'.9'' /46.8
--- --- 17'.1'' x 11'.5'' /59''
--- --- 10'.1'' x 7' /N/A
--- --- 15'.1'' x 15'.2'' /40"
--- --- 6' x 10'.7" /40"
--- --- 14'.7'' x 6'.1'' /N/A
--- --- 11'.5'' x 10'.9'' /40"
--- --- 11'.5'' x 10'.7'' /40''
--- --- 10'.8'' x 11'.5'' /40"
--- --- 14'.6'' x 5'.7'' /40"
--- --- 14'.7'' x 22'.9'' /Open
--- --- 36'.11'' x 17'.1" /Open
--- --- 32'.2'' x 14'.4'' /Open
--- --- 3'.1'' x 9'.5'' /45"
--- --- 13'.8" x 8'.4" /Open
--- --- 8'.1" x 7'.11" - jog /45"
--- --- 11'.1" x 9'.9" /45"
--- --- 16'.1" x 14'.4" /Open
--- --- 22'.6" x 15'.9" + Jog /Open
--- --- 22'.6" x 15'.9" + Jog /Open
--- --- 10'.9" x 12'.3" /Open
--- --- 12' x 7'.10" /95"
--- --- 18'.1" x 23'.5'' -jog /Open
--- --- 18'.5' x 11'.9'' /46.8
--- --- 17'.1'' x 11'.5'' /59''
--- --- 10'.1'' x 7' /N/A
--- --- 15'.1'' x 15'.2'' /40"
--- --- 6' x 10'.7" /40"
--- --- 14'.7'' x 6'.1'' /N/A
--- --- 11'.5'' x 10'.9'' /40"
--- --- 11'.5'' x 10'.7'' /40''
--- --- 10'.8'' x 11'.5'' /40"
--- --- 14'.6'' x 5'.7'' /40"
--- --- 14'.7'' x 22'.9'' /Open
--- --- 36'.11'' x 17'.1" /Open
--- --- 32'.2'' x 14'.4'' /Open
--- --- 3'.1'' x 9'.5'' /45"
--- --- 13'.8" x 8'.4" /Open
--- --- 8'.1" x 7'.11" - jog /45"
--- --- 11'.1" x 9'.9" /45"
--- --- 16'.1" x 14'.4" /Open
--- --- 22'.6" x 15'.9" + Jog /Open
--- --- 22'.6" x 15'.9" + Jog /Open
--- --- 10'.9" x 12'.3" /Open
--- --- 12' x 7'.10" /95"
--- --- 18'.1" x 23'.5'' -jog /Open
--- --- 18'.5' x 11'.9'' /46.8
--- --- 17'.1'' x 11'.5'' /59''
--- --- 10'.1'' x 7' /N/A
--- --- 15'.1'' x 15'.2'' /40"
--- --- 6' x 10'.7" /40"
--- --- 14'.7'' x 6'.1'' /N/A
--- --- 11'.5'' x 10'.9'' /40"
--- --- 11'.5'' x 10'.7'' /40''
--- --- 10'.8'' x 11'.5'' /40"
--- --- 14'.6'' x 5'.7'' /40"
--- --- 14'.7'' x 22'.9'' /Open
--- --- 36'.11'' x 17'.1" /Open
--- --- 32'.2'' x 14'.4'' /Open
--- --- 3'.1'' x 9'.5'' /45"
--- --- 13'.8" x 8'.4" /Open
--- --- 8'.1" x 7'.11" - jog /45"
--- --- 11'.1" x 9'.9" /45"
--- --- 16'.1" x 14'.4" /Open
--- --- 22'.6" x 15'.9" + Jog /Open
--- --- 22'.6" x 15'.9" + Jog /Open
--- --- 10'.9" x 12'.3" /Open

Virtual Tour

Garage & Parking

Garage
Y
Details
Brand new double detached (heated and wired) with two bay doors.

Inclusions & Exclusions

Inclusions
See list of inclusions (Documents Tab)
Exclusions
Pool Table and Pool Table lighting

Sales History

Halifax Regional Municipality Data

Zoning
RRB-1
By-Law Code:
Polling District
Prospect Road – St. Margarets
Concillor: Nancy Hartling
Waste Collection
WEDNESDAY
Contractor: Green For Life

Demographic Data

Demographic data is based on the dissemination area that contains the listing parcel . Dissemination Areas are small areas composed of one or more neighbouring dissemination blocks. All of Canada is divided into dissemination areas. Data source: Environics Analytics via ArcGIS Online, 2021

Population Size

862

Median Age

45.5

Avg Household Size

2.5

Avg House Income

$111K

The number of people for each age range.

How the population of this area is expected to change.

The highest level of education obtained by people within this area.

The maritial status of the people in this area.

The average household income within this area.

The number of people that rent versus own.

When the buildings in the area were constructed.

The number of children at home for the given age ranges.

The occupations of the people living here.

Tax Assessment

Year Amount % Change
2024 $653,300 ---
2023 $599,000 ---
2022 $482,700 ---
2021 $428,900 ---
2020 $479,100 ---
2019 $476,900 ---
2018 $474,400 ---
2017 $475,100 ---
2016 $478,500 ---
2015 $485,800 ---
2014 $477,300 ---
2013 $462,700 ---
2012 $302,400 ---

Maps

Mortgage Inquiries

Last Updated On: 4/17/2026 2:05:02 PM (UTC)