179 Hages Lane, Prospect, (MLS® 202603766) REMAX NOVA
Google Play iOS Google Play iOS

179 Hages Lane, Prospect

5 4 4001 sqft
$1,398,000 For Sale

Description

Nestled on the scenic shores of Shad Bay in Prospect, Nova Scotia, this impressive five-bedroom home offers over 175 feet of oceanfront, showcasing spectacular views and a tranquil coastal lifestyle. Thoughtfully designed, the spacious open-concept main floor features expansive windows, vaulted ceilings, and a welcoming living area ideal for families seeking both comfort and style. The dining area is perfect for hosting large gatherings, while the kitchen includes abundant cabinetry, solid surface countertops, and an oversized center island. The main level also includes two bedrooms, a laundry area, and a dedicated home office. Upstairs, the primary suite features a full ensuite bath with walk-in shower and soaker tub, as well as a walk-in closet. The lower level offers excellent space for guests or extended family, with two additional bedrooms, a full bathroom, and a bright, spacious recreation room with patio doors opening to the private backyard and picturesque shoreline. In-floor heating ensures efficient comfort throughout the home, and woodstoves on both the main and lower levels provide added warmth in winter. Outdoors, enjoy direct water access, a generous deck ideal for entertaining, nearby walking trails, and the natural beauty that defines this sought-after community. View this home in person to appreciate all that it has to offer—book your viewing today!

Listing Details

Address
179 Hages Lane, Prospect, B3T 2A4

Status
ACTIVE
Listing Price
$1,398,000
MLS®
202603766
Type
Single Family
Style
Detached
Age
10
Square Footage (MLA)
2,274  ft2
Total Fin SqFt (TLA)
4,001  ft2
PID
40714347
Bedrooms
5
Full Baths
3
Half Baths
1

Water
Drilled Well
Sewer
Septic
Utilities
Cable,Electricity,High Speed Internet,Telephone

Building Specifications

Foundation Type
Poured Concrete
Roof
Asphalt Shingle
Exterior Finish
Stone,Wood Siding
Flooring
Ceramic,Laminate

Looking for a Mortgage? Get Your Free Quote Started Today!

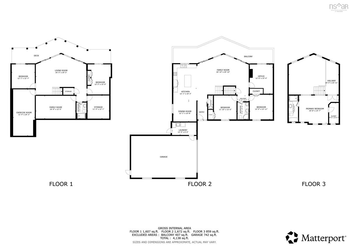
Rooms

LEVEL TYPE DIMENSIONS
Lower Level Family Room 26' x 16'.6" /na
Lower Level Games Room 24'.4" x 11'.1" /na
Lower Level Storage 20'.4" x 12' /na
Lower Level Bedroom 15'.7" x 12'.2" /na
Lower Level Bedroom 11'.9" x 12' /na
Lower Level Bath 4 8'.2" x 5'.4" /na
Lower Level Utility 11'.2" x 12' /na
Main Floor Foyer 13'.8" x 5'.2" /52"
Main Floor Living Room 25'.7" x 16' + Jog /OC
Main Floor Kitchen 18'.9" x 14' /na
Main Floor Dining Room 12' x 11' /na
Main Floor Laundry 12'.1" x 6'.6" /na
Main Floor Bath 1 7'.5" x 3'.8" /52"
Main Floor Bath 2 9' x 5'.7" /40"
Main Floor Den/Office 12' x 15' - jog
Main Floor Bedroom 12'.6" x 11'.7" /40"
Main Floor Bedroom 12' x 13' /40"
2nd Level Primary Bedroom 15' x 13'.9" /na
2nd Level Ensuite Bath 1 13'.9" x 5'.2" /na

Virtual Tour

Garage & Parking

Garage
Y
Details
Double attached, single detached.

Inclusions & Exclusions

Inclusions
Kitchen appliances, Washer, Dryer

Sales History

Halifax Regional Municipality Data

Zoning
RRB-1
By-Law Code:
Polling District
Prospect Road – St. Margarets
Concillor: Nancy Hartling
Waste Collection
WEDNESDAY
Contractor: Green For Life

Demographic Data

Demographic data is based on the dissemination area that contains the listing parcel . Dissemination Areas are small areas composed of one or more neighbouring dissemination blocks. All of Canada is divided into dissemination areas. Data source: Environics Analytics via ArcGIS Online, 2021

Population Size

862

Median Age

45.5

Avg Household Size

2.5

Avg House Income

$111K

The number of people for each age range.

How the population of this area is expected to change.

The highest level of education obtained by people within this area.

The maritial status of the people in this area.

The average household income within this area.

The number of people that rent versus own.

When the buildings in the area were constructed.

The number of children at home for the given age ranges.

The occupations of the people living here.

Tax Assessment

Year Amount % Change
2024 $1,163,500 ---
2023 $914,000 ---
2022 $729,600 ---
2021 $657,900 ---
2020 $655,300 ---
2019 $643,000 ---
2018 $634,500 ---
2017 $631,000 ---
2016 $626,200 ---
2015 $225,000 ---
2014 $150,000 ---
2013 $138,400 ---
2012 $138,400 ---

Maps

Mortgage Inquiries

Last Updated On: 3/4/2026 1:03:41 PM (UTC)