Lot 14-08B 119 Tyler Avenue, Onslow Mountain, (MLS® 202604967) REMAX NOVA
Google Play iOS Google Play iOS

Lot 14-08B 119 Tyler Avenue, Onslow Mountain

2 1 1044 sqft
$360,000 For Sale

Description

Looking for a new home that has 2 bedrooms on a heated in-floor slab in Colchester? Look no further than this new home located at 119 Tyler Avenue, Onslow Mountain. This 29,062 sqft lot is impressive. This new construction on slab will be mobility friendly with 36" door openings and lowered controls throughout. The kitchen features stainless steel appliances, plenty of cabinetry (soft close), two pantries and a gorgeous quartz countertop island peninsula with sink and breakfast bar. Perfect for a small family this home has 2 large bedrooms and a four piece bathroom and vanity with quartz countertops. The main floor bedrooms, living room and kitchen has vinyl plank flooring throughout. The heating systems are in-floor heat, and ductless heat pump that offers A/C in the summer and heating in the winter. Energy efficiency is key with this home so your energy bills should be minimal. There is additional room for storage in the utility room and closets. Light is LED throughout the home with pot lights in the kitchen. A 200 amp electrical breaker in the utility room with pressure tank, electric hot water heater and HRV unit for air exchange in the home. The home has vinyl siding, asphalt roof and vinyl windows. On the exterior of the home you will have a new single gravel driveway, seeded lot (weather dependent) and a covered porch area on the front of the home with pot lights. Don't miss out on this new build with 8 year LUX home warranty in this desirable neighbourhood in Onslow Mountain for early summer 2026 possession. The purchase price includes HST. All HST rebates back to the builder. MLA/TLA includes all interior space including the utility room.

Listing Details

Address
Lot 14-08B 119 Tyler Avenue, Onslow Mountain, B6L 6A9

Status
ACTIVE
Listing Price
$360,000
MLS®
202604967
Type
Single Family
Style
Detached
Age
0
Square Footage (MLA)
1,044  ft2
Total Fin SqFt (TLA)
1,044  ft2
PID
20504130
Bedrooms
2
Full Baths
1
Half Baths
0

Water
Drilled Well
Sewer
Septic
Utilities
Electricity,High Speed Internet,Telephone

Building Specifications

Foundation Type
Slab,Insulated Concrete
Roof
Asphalt Shingle
Exterior Finish
Vinyl
Flooring
Vinyl

Looking for a Mortgage? Get Your Free Quote Started Today!

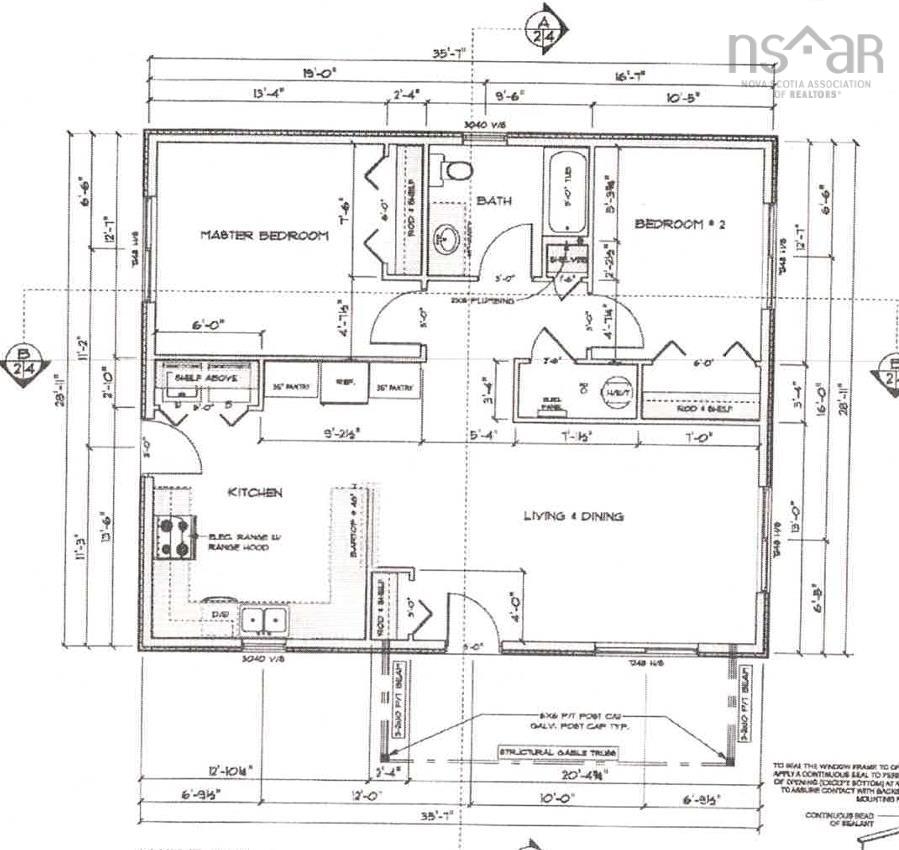
Rooms

LEVEL TYPE DIMENSIONS
Main Floor Living Room 13x20.4
Main Floor Kitchen 12.10x16.4
Main Floor Primary Bedroom 13.4x12.7
Main Floor Bedroom 12.7x10.5
Main Floor Bath 1 9.6x7.6

Garage & Parking

Garage
N
Details
---

Inclusions & Exclusions

Inclusions
Fridge, stove, DW, MW Hood Range

Sales History

Demographic Data

Demographic data is based on the dissemination area that contains the listing parcel . Dissemination Areas are small areas composed of one or more neighbouring dissemination blocks. All of Canada is divided into dissemination areas. Data source: Environics Analytics via ArcGIS Online, 2021

Population Size

598

Median Age

48.4

Avg Household Size

2.3

Avg House Income

$94K

The number of people for each age range.

How the population of this area is expected to change.

The highest level of education obtained by people within this area.

The maritial status of the people in this area.

The average household income within this area.

The number of people that rent versus own.

When the buildings in the area were constructed.

The number of children at home for the given age ranges.

The occupations of the people living here.

Maps

Mortgage Inquiries

Last Updated On: 3/20/2026 10:47:50 PM (UTC)