Lot # 125 Portion of 55505192 Covey Drive Drive, North Kentville, (MLS® 202608588) REMAX NOVA
Google Play iOS Google Play iOS

Lot # 125 Portion of 55505192 Covey Drive Drive, North Kentville

2 2 1029 sqft
$449,900 For Sale

Description

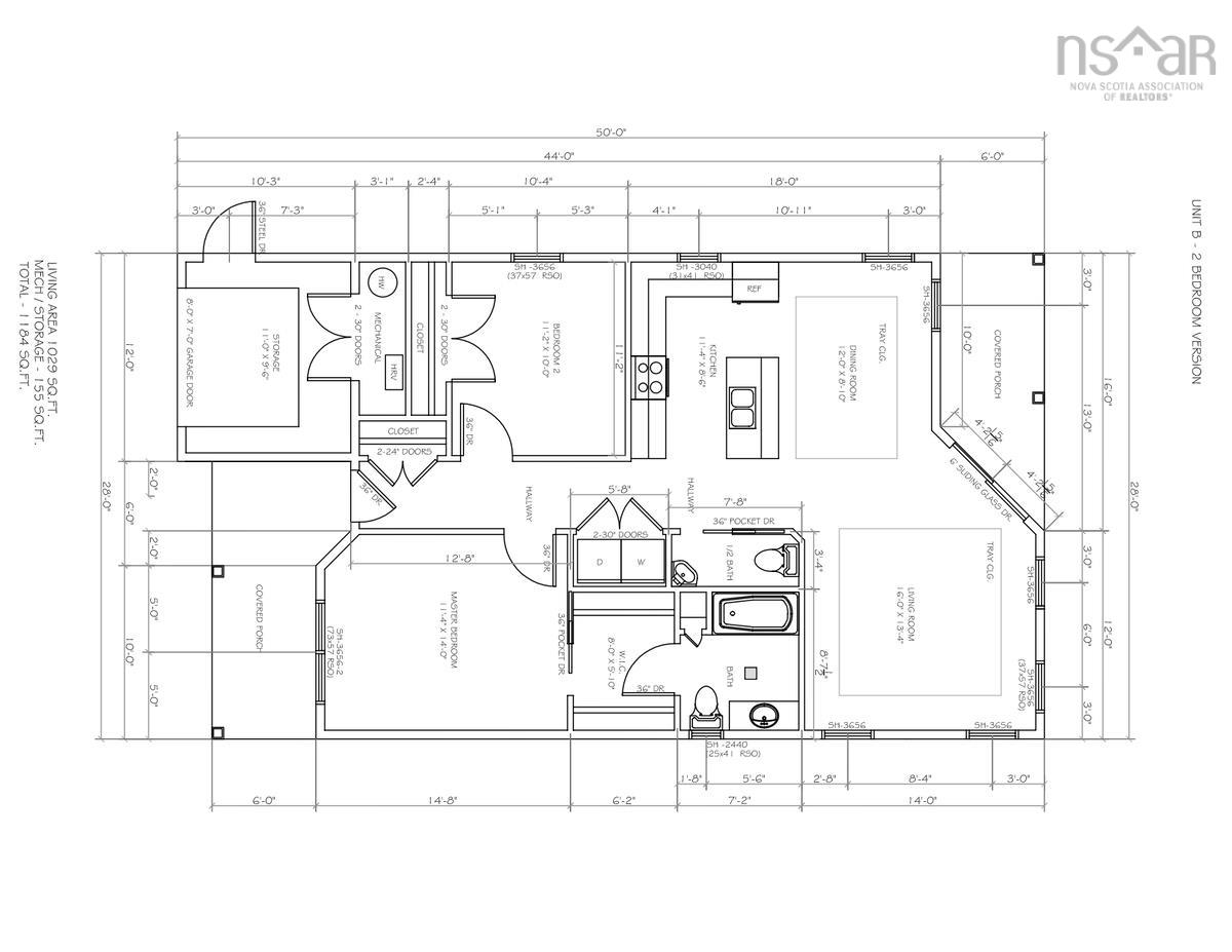
Introducing the Valley Cottage Collection! Why rent when you could own this brand new home?! It features two bedrooms and 1.5 baths. The main level offers a spacious open-concept. A heat pump is located in this area to provide comfort in all seasons. The kitchen is equipped with a sit-up center island and a pantry closet. The half bath is conveniently located, offering easy access for guests. You can access the deck via patio doors. Large windows are found throughout to allow for lots of natural light. The Primary bedroom is equipped with a walk-in closet and an ensuite bath. The second bedroom boasts a double closet. The laundry area allows you to have a full size washer and dryer. In addition to the Mechanical room, you'll find a 11' x 9'6 storage room. It's equipped with a side door, plus a full size garage door, so you can easily store your ride-on mower, golf cart & more! The lawn will be sodded and the driveway will be paved. Allowances are being offered for flooring, lighting and cabinets. Appliance packages are being offered at an additional cost. Room & lot sizes are approximate, based on plans. The lot is to be subdivided prior to closing. You can enjoy the added convenience of Municipal water & sewer and County taxes. Sidewalks are located nearby. A quick commute takes you to Kentville, New Minas, Hwy # 101 access and Wolfville, where you’ll find Acadia University. There are so many things to see and do in the Annapolis Valley. There are many award-winning wineries, fresh seafood restaurants, live theatre, unique shops and Kingsport, where you’ll find some of the highest tides in the world!

Listing Details

Address
Lot # 125 Portion of 55505192 Covey Drive Drive, North Kentville, B4N 0H8

Status
ACTIVE
Listing Price
$449,900
MLS®
202608588
Type
Single Family
Style
Detached
Age
0
Square Footage (MLA)
1,029  ft2
Total Fin SqFt (TLA)
1,029  ft2
PID
Portion of 55505192
Bedrooms
2
Full Baths
1
Half Baths
1

Water
Municipal
Sewer
Municipal
Utilities
Cable,Electricity,High Speed Internet,Telephone

Building Specifications

Foundation Type
Slab
Roof
Asphalt Shingle
Exterior Finish
Vinyl
Flooring
Vinyl Plank

Looking for a Mortgage? Get Your Free Quote Started Today!

Rooms

LEVEL TYPE DIMENSIONS
Main Floor Foyer 3'6" x 12'8"
Main Floor Living Room 16' x 13'4"
Main Floor Dining Room 12' x 8'10"
Main Floor Kitchen 11'4" x 8'10"
Main Floor Primary Bedroom 11'4" x 14'
Main Floor OTHER 8'7" x 7'2"
Main Floor Bath 1 8' x 7'2"
Main Floor Bath 2 3'4" x 7'8"
Main Floor Bedroom 11'2" x 10'
Main Floor Laundry 5'8" x 3'4"
Main Floor Utility 3'1" x 8'
Main Floor Storage 11' x 9'6"

Garage & Parking

Garage
N
Details
---

Sales History

Demographic Data

Demographic data is based on the dissemination area that contains the listing parcel . Dissemination Areas are small areas composed of one or more neighbouring dissemination blocks. All of Canada is divided into dissemination areas. Data source: Environics Analytics via ArcGIS Online, 2021

Population Size

637

Median Age

41.9

Avg Household Size

2.5

Avg House Income

$90K

The number of people for each age range.

How the population of this area is expected to change.

The highest level of education obtained by people within this area.

The maritial status of the people in this area.

The average household income within this area.

The number of people that rent versus own.

When the buildings in the area were constructed.

The number of children at home for the given age ranges.

The occupations of the people living here.

Maps

Mortgage Inquiries

Last Updated On: 4/24/2026 7:04:41 PM (UTC)