Lot # 6B Kara Anne Court, New Minas, (MLS® 202521092) REMAX NOVA
Google Play iOS Google Play iOS

Lot # 6B Kara Anne Court, New Minas

3 2 1520 sqft
$439,000 For Sale

Description

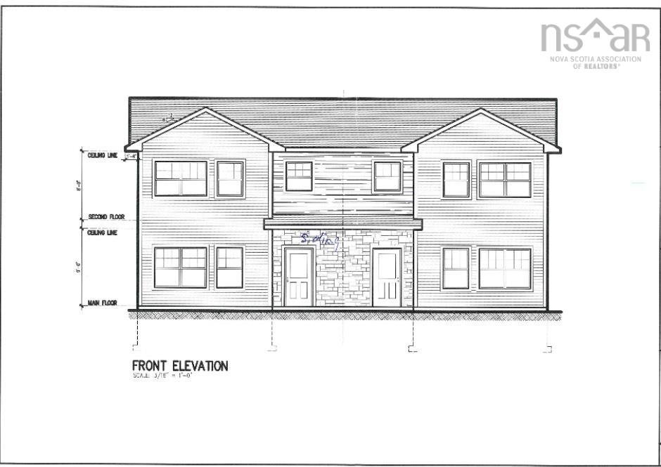
This brand new, three bedroom, 1.5 bath family home is now under construction. These quality built homes are conveniently located on the bus route. Sidewalks lead you to downtown, where you can enjoy many amenities, including shopping, theatre, the gym, dining, the Veterinary and many more! It's just a short drive to Acadia University, many local award-winning wineries, Hwy # 101 access and Kingsport, where you can enjoy views of some of the highest tides in the world. The kitchen boasts ample cabinets, with a peninsula and space for a dishwasher. You can access the deck via patio doors from the dining area. The laundry is conveniently located on the upper level near the bedrooms. Large windows allow for lots of natural light. Easy care vinyl plank flooring is found throughout the home, except the stairway, where you'll find non-slip carpet. Lot to be subdivided prior to closing. Total lot size to be approx 5500 sf, but will be determined when divided.

Listing Details

Address
Lot # 6B Kara Anne Court, New Minas, B4N 0H6

Status
ACTIVE
Listing Price
$439,000
MLS®
202521092
Type
Single Family
Style
Semi-Detached
Age
0
Square Footage (MLA)
1,520  ft2
Total Fin SqFt (TLA)
1,520  ft2
PID
55557227
Bedrooms
3
Full Baths
1
Half Baths
1

Water
Municipal
Sewer
Municipal
Utilities
Cable,Electricity,High Speed Internet,Telephone,Other

Building Specifications

Foundation Type
Slab
Roof
Asphalt Shingle
Exterior Finish
Vinyl
Flooring
Carpet,Vinyl Plank

Looking for a Mortgage? Get Your Free Quote Started Today!

Rooms

LEVEL TYPE DIMENSIONS
Main Floor Foyer 4'11" x 6'3"
Main Floor Living Room 12' x 20'7"
Main Floor Dining Room 10'8" x 10'5"
Main Floor Kitchen 12' x 10'5"
Main Floor Bath 1 6'1" x 6'9"
Main Floor Utility 3'6" x 4'11"
2nd Level Primary Bedroom 12'6" x 14'
2nd Level OTHER 8'10'x8'3" - jog walkin
2nd Level Bath 2 6'4 x 8'8"
2nd Level Bedroom 10'2" x 10'7"
2nd Level Bedroom 10'2" x 8'3"
2nd Level Laundry 6' x 9'

Garage & Parking

Garage
N
Details
None

Sales History

Demographic Data

Demographic data is based on the dissemination area that contains the listing parcel . Dissemination Areas are small areas composed of one or more neighbouring dissemination blocks. All of Canada is divided into dissemination areas. Data source: Environics Analytics via ArcGIS Online, 2021

Population Size

650

Median Age

50.7

Avg Household Size

2.0

Avg House Income

$63K

The number of people for each age range.

How the population of this area is expected to change.

The highest level of education obtained by people within this area.

The maritial status of the people in this area.

The average household income within this area.

The number of people that rent versus own.

When the buildings in the area were constructed.

The number of children at home for the given age ranges.

The occupations of the people living here.

Maps

Mortgage Inquiries

Last Updated On: 11/10/2025 8:05:15 PM (UTC)