400 Zaffre Drive, Middle Sackville, (MLS® 202600497) REMAX NOVA
Google Play iOS Google Play iOS

400 Zaffre Drive, Middle Sackville

4 3 1951 sqft
$719,900 Pending

Description

COME AND SEE US AT OUR MODEL HOME AT 242 Zaffre Drive EVERY SATURDAY & SUNDAY FROM 2-4 PM. Amara Developments is thrilled to introduce “The Cortina" in the newest phase of Indigo Shores in Middle Sackville, Nova Scotia. Discover "The Cortina" - the epitome of modern living in this stunning newly constructed modern craftsman split-entry home ideally located a short commute from the city yet nestled in a serene country setting, offering 3+1 bedrooms, 3 full baths, and an array of premium features and "zen-factor". This brand-new design is an improvement in size from our popular Aspen plan and features a variety of compelling new qualities. A high-end kitchen awaits with stone counters, full-height cabinets, and soft-close drawers, while the bright living room invites relaxation with wide plank flooring. Luxurious touches abound, including a primary bedroom with a walk-in closet and an ensuite featuring a double floating vanity and custom shower. Contemporary finishes such as custom hardwood stairs, modern lighting, and designer tiles enhance the aesthetic, complemented by an energy-efficient heat pump. Additional highlights include an enhanced kitchen, a double-car garage, and a fourth bedroom in the basement with a full bath. Escape the ordinary and embrace modern comfort in the burbs'— discover all the details and features of this stunning home and private oasis. More house plans and lots to come!

Listing Details

Address
400 Zaffre Drive, Middle Sackville, B4E 3C3

Status
PENDING
Listing Price
$719,900
MLS®
202600497
Type
Single Family
Style
Detached
Age
0
Square Footage (MLA)
1,213  ft2
Total Fin SqFt (TLA)
1,951  ft2
PID
41521816
Bedrooms
4
Full Baths
3
Half Baths
0

Water
Drilled Well
Sewer
Septic
Utilities
Electricity,Telephone

Building Specifications

Foundation Type
Poured Concrete
Roof
Asphalt Shingle
Exterior Finish
Vinyl
Flooring
Ceramic,Laminate

Looking for a Mortgage? Get Your Free Quote Started Today!

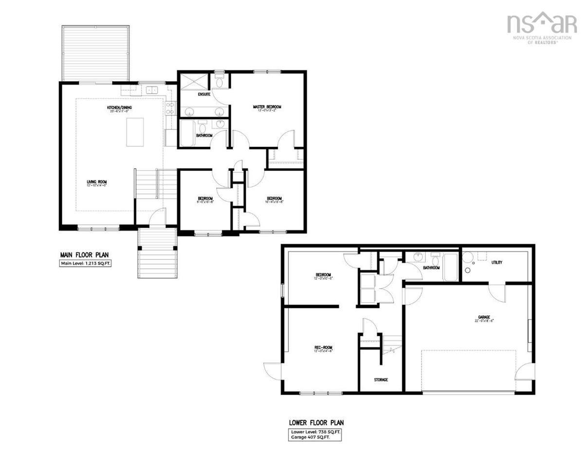
Rooms

LEVEL TYPE DIMENSIONS
Lower Level Rec Room 12' x 14'6
Lower Level Bedroom 12' x 10'
Lower Level Bedroom 9' x 5'6
Lower Level Utility N/A
Lower Level OTHER 22' x 18'6 - GARAGE
Lower Level Bath 4 N/A
Main Floor Living Room 12'10 x 14'
Main Floor Eat In Kitchen 20'6 x 11'
Main Floor Bath 1 N/A
Main Floor Primary Bedroom 13' x 13'2
Main Floor Ensuite Bath 2 N/A
Main Floor Bedroom 9' x 10'8
Main Floor Bedroom 10'4 x 10'8

Garage & Parking

Garage
Y
Details
Attached, wired, heated

Sales History

Tax Assessment

Year Amount % Change
2024 $175,300 ---

Maps

Mortgage Inquiries

Last Updated On: 1/9/2026 6:20:07 PM (UTC)