Description
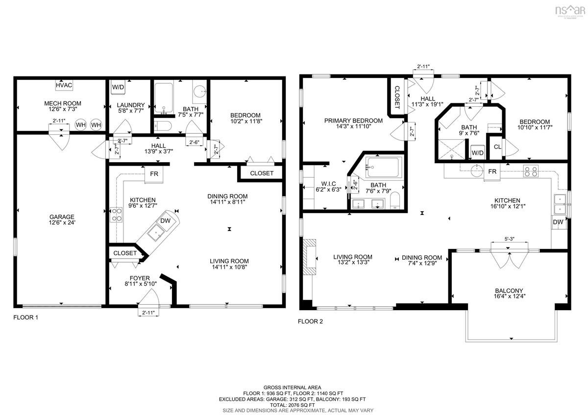
Constructed in 2010, this "upper and lower", traditional-contemporary design, is full of sun, set against Lunenburg's Blockhouse Hill facing the historic front harbour. The vintage architectural and nautical views to the working waterfront, make this 'nearly new' offering of premium ICF construction, a rarity within the historic fabric of Old Town. This architecturally sensitive design consists of two independent units each with its own, private, stairless front entry. The lower, one-bedroom suite is adjacent a heated, attached garage, with tandem parking for two cars. The main living area is open concept and features radiant, hot-water, in-floor heating. There are harbour views from the living room and an outdoor seating area to one side. The primary suite is accessed from a paved driveway which curls round the building to the rear with a gentle rise. Upon entering one is greeted with a spacious foyer-"L" with a bathroom, with shower and laundry, adjacent the guest bedroom. This rear foyer separates the guest bedroom from the primary bedroom which features an ensuite bath off a dressing area with closets. The cathedral ceilings of the second level lend for a light and airy feel in the primary suite and the open-concept, main living area and kitchen which span the entire front of the building. The second floor also features hardwood flooring, a gas fireplace, and a covered verandah (16'4 X 12'4) overlooking the bay. There is a sidewalk across the road in front of the house and this property is located minutes walk to the ocean at front harbour, or a few minutes drive to the public marina and park at back harbour. An old fashioned grocery store is a short walk away. Apart from all the comforts of a newer, low-maintenance home this offering is foremost a "lifestyle property". Its architecture references old-world design and offers a unique configuration for extended family or loved ones beneath one roof, at the beautiful heart of Lunenburg.
Listing Details
243 Pelham Street, Lunenburg, B0J 2C0
ACTIVE
$998,000
202529467
Single Family
Over-Under
15
2,100 ft2
2,100 ft2
60062403
3
3
0
Municipal
Municipal
Cable,Electricity,High Speed Internet,Telephone
Building Specifications
Insulated Concrete
Asphalt Shingle
Insulated Concrete,Wood Shingles
Ceramic,Concrete,Hardwood