75 Q12 Road, Lake George, (MLS® 202507301) REMAX NOVA
Google Play iOS Google Play iOS

75 Q12 Road, Lake George

2 2 857 sqft
Sold

Description

Welcome to your luxurious year-round bungalow or your extravagant weekend retreat tucked away in a peaceful cove on Lake George, one of Nova Scotia’s most stunning lakes. This low-maintenance property is beautifully finished and designed for both comfort and ease of ownership. Featuring 2 bedrooms and 2 bathrooms, including a 3-piece ensuite, it offers all the luxuries of home in a serene lakeside setting. Inside, enjoy breathtaking lake views and high-end finishes, including hardwood and tile floors and Corian countertops. A heat pump ensures year-round comfort, keeping you cool in the summer and warm in the winter. From the lake to the spacious deck, this property is made for unforgettable summers perfect for hosting friends and family. An outdoor shower with hot and cold water makes it easy to rinse off after a swim or paddle, keeping the interior fresh and clean. The property also includes a shed for storage and a Bunkie for extra storage, making it an ideal space for both relaxation and entertaining. A rare opportunity to own a low-maintenance luxury bungalow, tucked away in a cove on Lake George

Listing Details

Address
75 Q12 Road, Lake George, B0P 1C0

Status
SOLD
Sold Price
Log In
MLS®
202507301
Type
Single Family
Style
Detached
Age
12
Square Footage (MLA)
857  ft2
Total Fin SqFt (TLA)
857  ft2
PID
55124655
Bedrooms
2
Full Baths
2
Half Baths
0

Water
Drilled Well
Sewer
Septic
Utilities
Electricity,High Speed Internet

Building Specifications

Foundation Type
Poured Concrete
Roof
Asphalt Shingle
Exterior Finish
Wood Shingles
Flooring
Hardwood,Tile

Looking for a Mortgage? Get Your Free Quote Started Today!

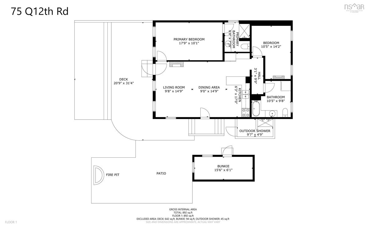
Rooms

LEVEL TYPE DIMENSIONS
Main Floor Primary Bedroom 17'1 x 10'11
Main Floor Ensuite Bath 1 8'9 x 7'9
Main Floor Laundry/Bath 9'7 x 7'9
Main Floor Bedroom 14'2 x 10'4
Main Floor Eat In Kitchen 24'11 x14'8

Virtual Tour

Garage & Parking

Garage
N
Details
---

Inclusions & Exclusions

Inclusions
See docs on file

Sales History

Demographic Data

Demographic data is based on the dissemination area that contains the listing parcel . Dissemination Areas are small areas composed of one or more neighbouring dissemination blocks. All of Canada is divided into dissemination areas. Data source: Environics Analytics via ArcGIS Online, 2021

Population Size

469

Median Age

50.9

Avg Household Size

2.6

Avg House Income

$75K

The number of people for each age range.

How the population of this area is expected to change.

The highest level of education obtained by people within this area.

The maritial status of the people in this area.

The average household income within this area.

The number of people that rent versus own.

When the buildings in the area were constructed.

The number of children at home for the given age ranges.

The occupations of the people living here.

Tax Assessment

Year Amount % Change
2024 $440,000 ---
2023 $308,500 ---
2022 $238,100 ---
2021 $123,100 ---
2020 $121,000 ---
2019 $121,100 ---
2018 $121,700 ---
2017 $121,000 ---
2016 $123,200 ---
2015 $127,700 ---
2014 $126,400 ---
2013 $67,000 ---
2012 $56,500 ---

Maps

Mortgage Inquiries

Last Updated On: 11/19/2025 12:00:00 AM (UTC)