143 Roundhouse Drive, Bridgewater, (MLS® 202601263) REMAX NOVA
Google Play iOS Google Play iOS

143 Roundhouse Drive, Bridgewater

3 3 2067 sqft
$618,000 For Sale

Description

Discover this soon to be constructed stunning residential duplex located on the highly desirable Roundhouse Drive. This remarkable 2,067 sq. ft. home presents an excellent opportunity for the astute buyer, featuring 3 spacious bedrooms, den/office/4th bedroom and 3 well-appointed bathrooms. The main level offers in floor radiant heating and is where you'll find the primary bedroom, complete with a luxurious 4-piece ensuite and a generous walk-in closet. Venture to the upper level, where two additional bedrooms are accompanied by a bonus area and another of the bathrooms. The impressive 9-foot ceilings on the homes lower level allow for an abundance of natural light, enhancing the overall ambiance. The open-concept layout of the kitchen, dining, and great rooms creates a seamless flow for effortless living and entertaining. Practical features include ample storage, a utility room, and a convenient laundry area located on the main floor. The double garage opens into a mudroom that easily connects to the laundry and utility spaces, ensuring a smooth transition for bringing in groceries and other items. This home is not just a residence; it's a lifestyle waiting for you and built proudly by Ziegler Homes Ltd.

Listing Details

Address
143 Roundhouse Drive, Bridgewater, B4V 9A9

Status
ACTIVE
Listing Price
$618,000
MLS®
202601263
Type
Single Family
Style
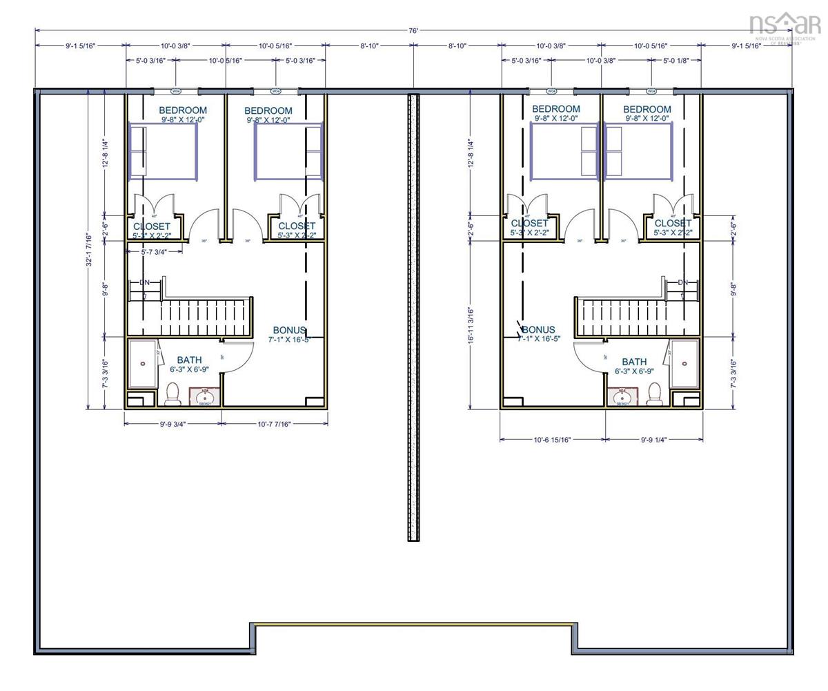
Side By Side
Age
0
Square Footage (MLA)
1,425  ft2
Total Fin SqFt (TLA)
2,067  ft2
PID
60740644
Bedrooms
3
Full Baths
3
Half Baths
0

Water
Municipal
Sewer
Municipal
Utilities
Cable,Electricity,High Speed Internet,Telephone

Building Specifications

Foundation Type
Slab
Roof
Asphalt Shingle
Exterior Finish
---
Flooring
Vinyl Plank

Looking for a Mortgage? Get Your Free Quote Started Today!

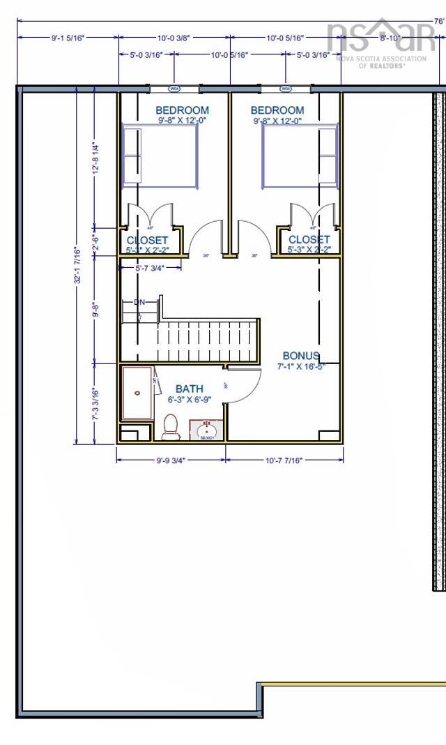
Rooms

LEVEL TYPE DIMENSIONS
Main Floor Primary Bedroom 12'6 X 13'4
Main Floor OTHER 6'4 X 6'8
Main Floor Ensuite Bath 1 5'4 X 10'6
Main Floor Den/Office 10'5 X 13'3
Main Floor Kitchen 10'8 X 11'1
Main Floor Dining Room 10'8 X 9'3
Main Floor Great Room 13'5 X 20'4
Main Floor Utility 3'0 X 6'6
Main Floor Laundry 5'4 X 6'8
Main Floor Mud Room 5'0 X 4'1
Main Floor Bath 1 10'5 X 6'1
Main Floor Primary Bedroom 12'6 X 13'4
Main Floor OTHER 6'4 X 6'8
Main Floor Ensuite Bath 1 5'4 X 10'6
Main Floor Den/Office 10'5 X 13'3
Main Floor Kitchen 10'8 X 11'1
Main Floor Dining Room 10'8 X 9'3
Main Floor Great Room 13'5 X 20'4
Main Floor Utility 3'0 X 6'6
Main Floor Laundry 5'4 X 6'8
Main Floor Mud Room 5'0 X 4'1
Main Floor Bath 1 10'5 X 6'1
2nd Level Bedroom 9'8 X 12'0
2nd Level Bedroom 9'8 X 12'0
2nd Level OTHER 7'1 X 16'5
2nd Level Bath 2 6'3 X 6'9
2nd Level Bedroom 9'8 X 12'0
2nd Level Bedroom 9'8 X 12'0
2nd Level OTHER 7'1 X 16'5
2nd Level Bath 2 6'3 X 6'9

Garage & Parking

Garage
Y
Details
Double insulated, wired & heated

Sales History

Demographic Data

Demographic data is based on the dissemination area that contains the listing parcel . Dissemination Areas are small areas composed of one or more neighbouring dissemination blocks. All of Canada is divided into dissemination areas. Data source: Environics Analytics via ArcGIS Online, 2021

Population Size

710

Median Age

58.3

Avg Household Size

1.9

Avg House Income

$83K

The number of people for each age range.

How the population of this area is expected to change.

The highest level of education obtained by people within this area.

The maritial status of the people in this area.

The average household income within this area.

The number of people that rent versus own.

When the buildings in the area were constructed.

The number of children at home for the given age ranges.

The occupations of the people living here.

Maps

Mortgage Inquiries

Last Updated On: 3/15/2026 6:13:11 PM (UTC)