6021 Charles Street, Halifax, (MLS® 202521684) REMAX NOVA
Google Play iOS Google Play iOS

6021 Charles Street, Halifax

Sold

Description

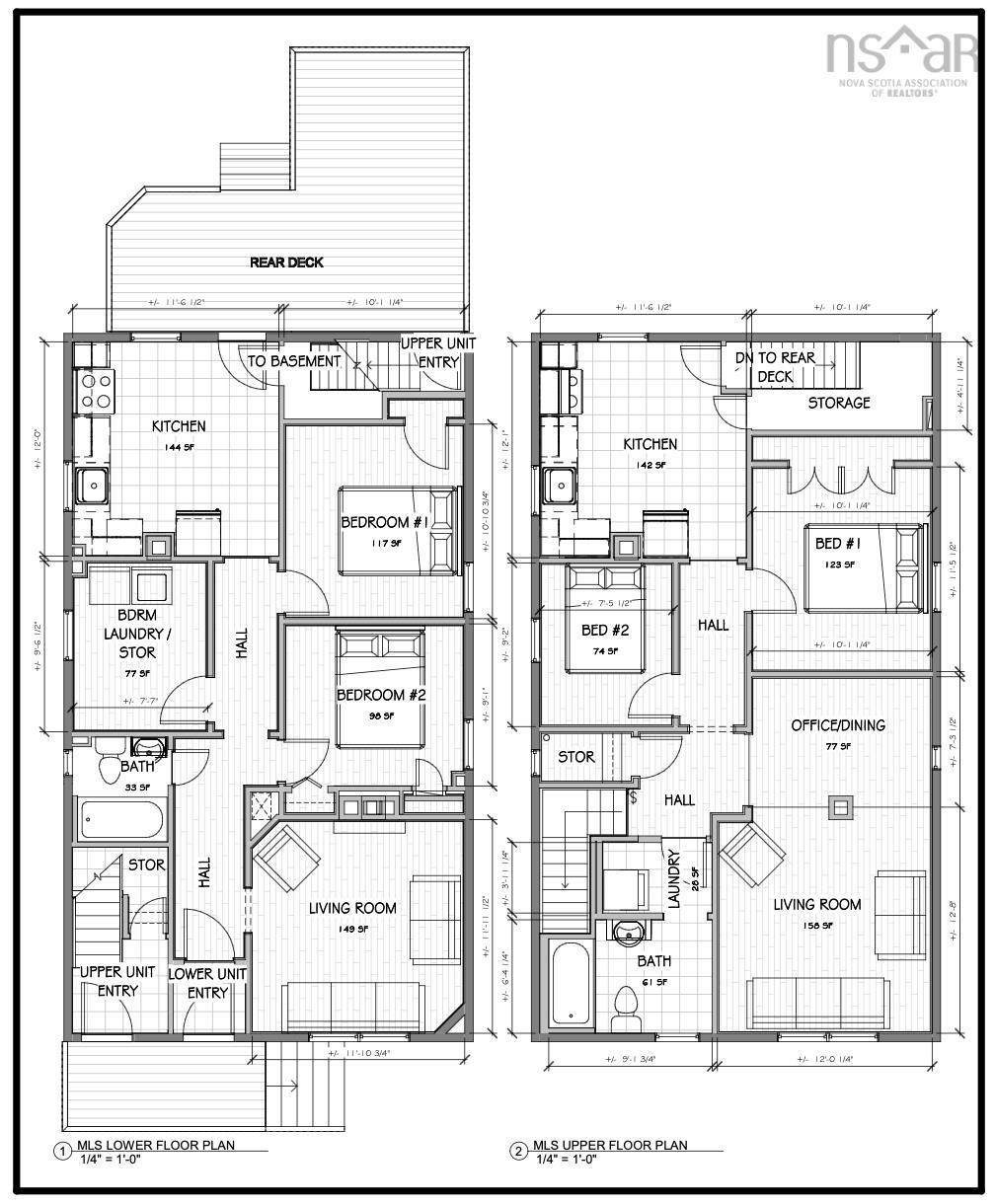
Welcome to 6021 Charles Street, located smack dab in the Heart of Halifax. This well maintained over under set of flats, is walking distance to DAL, St. Marys, QE2, VG and IWK, and the perfect location to walk or bike everywhere on the peninsula. This property is ideal for someone looking to make a solid investment, without the costly renovation work. Each unit has its own electrical panels, oil tanks, hot water tanks, separate entrances at the front and rear, and loads of curb appeal on this lovely Halifax treelined street. The main level boast 3 good size bedrooms, cozy living room, updated kitchen, in-unit laundry, freshly painted throughout with laminate and vinyl flooring. The upstairs tenant clearly prides themselves on style and cleanliness, a peace of mind for any home owner or investor. This unit boast the same updates with 2 bedrooms, in-unit laundry/with full bath. The backyard is lovely with gardens a new deck, partially fenced, and parking through the rear right of way. This property has been well cared for over the years, and is move in ready for its new owner or tenants. Over the years updates include; new electrical panels, brand new water heaters, vinyl windows, insulation, new water lines to the street including sewer and water, new plumbing lines and much more.

Listing Details

Address
6021 Charles Street, Halifax, B3K 1K9

Status
SOLD
Sold Price
Log In
MLS®
202521684
Type
n/a
Style
---
Age
85
PID
00147397

Water
Municipal
Sewer
Municipal
Utilities
---

Building Specifications

Foundation Type
Concrete
Roof
Rolled
Exterior Finish
Vinyl,Wood Siding
Flooring
Laminate,Vinyl

Looking for a Mortgage? Get Your Free Quote Started Today!

Garage & Parking

Garage
N
Details
---

Sales History

Halifax Regional Municipality Data

Zoning
ER-2
By-Law Code:
Polling District
Halifax Peninsula North
Concillor: Virginia Hinch
Waste Collection
TUESDAY
Contractor: REgroup

Demographic Data

Demographic data is based on the dissemination area that contains the listing parcel . Dissemination Areas are small areas composed of one or more neighbouring dissemination blocks. All of Canada is divided into dissemination areas. Data source: Environics Analytics via ArcGIS Online, 2021

Population Size

496

Median Age

31.0

Avg Household Size

1.9

Avg House Income

$68K

The number of people for each age range.

How the population of this area is expected to change.

The highest level of education obtained by people within this area.

The maritial status of the people in this area.

The average household income within this area.

The number of people that rent versus own.

When the buildings in the area were constructed.

The number of children at home for the given age ranges.

The occupations of the people living here.

Tax Assessment

Year Amount % Change
2024 $547,300 ---
2023 $543,700 ---
2022 $384,100 ---
2021 $329,700 ---
2020 $323,000 ---
2019 $317,000 ---
2018 $316,300 ---
2017 $313,700 ---
2016 $312,200 ---
2015 $311,900 ---
2014 $344,100 ---
2013 $340,100 ---
2012 $306,900 ---

Maps

Mortgage Inquiries

Last Updated On: 9/9/2025 12:00:00 AM (UTC)