2192 Brookfield Dean Road- Highway 289 Highway, Middle Stewiacke, (MLS® 202522611) REMAX NOVA
Google Play iOS Google Play iOS

2192 Brookfield Dean Road- Highway 289 Highway, Middle Stewiacke

4 3 3000 sqft
$1,450,000 For Sale

Description

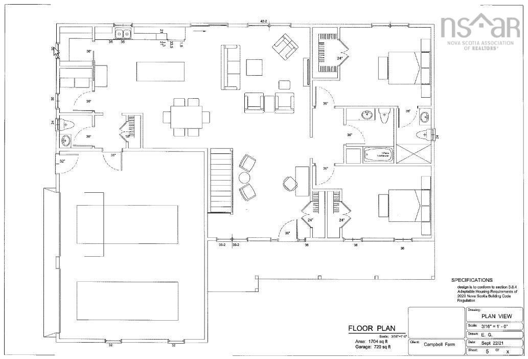
THIS FARM PROPERTY WILL NOT LAST LONG! DON'T WAIT AND BE DISAPPOINTED! Enter the home at the front into a foyer and open concept living room, dining area and airy kitchen with modern blue cabinetry and stone countertops. Large island and south facing windows giving natural light, complement the space. Off the kitchen area to the east is a pantry, separate laundry room, mud room with half bath, and access to the attached, double garage. Off the living area to the west - two bedrooms, one with ensuite, and a full bath. French doors lead from the main living area to a large deck offering outdoor living and sweeping, southerly, views over 90 acres farm land. Back in the house, stairs from foyer to lower level with 2 bedrooms, family room and plenty of storage. (Rough in for bathroom.) The land: 73.2 cleared acres, 14+- acres mixed woods. House and barns occupy 2.8 acres. Current crop is corn and grass. A retired dairy farm in its past life, a hobby farm presently, this property, with an estimated 1500' frontage on the Stewiacke River, just west of the Grecian Bend Pool, has been a destination for duck hunters for years. The possibilities are endless as to the future of this property.

Listing Details

Address
2192 Brookfield Dean Road- Highway 289 Highway, Middle Stewiacke, B0N 1C0

Status
ACTIVE
Listing Price
$1,450,000
MLS®
202522611
Type
n/a
Style
---
Age
2
Square Footage (MLA)
1,704  ft2
Total Fin SqFt (TLA)
3,000  ft2
PID
20048963
Bedrooms
4
Full Baths
2
Half Baths
1

Water
Drilled Well,Dug
Sewer
Septic
Utilities
Cable,Electricity,High Speed Internet,Telephone

Building Specifications

Foundation Type
Insulated Concrete
Roof
Steel
Exterior Finish
Vinyl
Flooring
Engineered Hardwood,Tile

Looking for a Mortgage? Get Your Free Quote Started Today!

Rooms

LEVEL TYPE DIMENSIONS
Lower Level Family Room 14' x 34'
Lower Level Bedroom 13' x 19'
Lower Level Bedroom 12' 14'
Main Floor Eat In Kitchen 14'7 x 18'6
Main Floor Storage 5'10 x 6'10
Main Floor Bath 1 5'10 x 5'10
Main Floor Laundry 5'10 x 7'4
Main Floor Living Room 20' x 18
Main Floor Foyer 16'5 x 14'
Main Floor Primary Bedroom 19'6 x13'
Main Floor Ensuite Bath 1 7' x 9'
Main Floor Bedroom 12' x 17'
Main Floor Bath 3 7'11 x 9'

Garage & Parking

Garage
Y
Details
double car attached garage, 24x30, heated, wired

Sales History

Demographic Data

Demographic data is based on the dissemination area that contains the listing parcel . Dissemination Areas are small areas composed of one or more neighbouring dissemination blocks. All of Canada is divided into dissemination areas. Data source: Environics Analytics via ArcGIS Online, 2021

Population Size

468

Median Age

41.6

Avg Household Size

2.6

Avg House Income

$111K

The number of people for each age range.

How the population of this area is expected to change.

The highest level of education obtained by people within this area.

The maritial status of the people in this area.

The average household income within this area.

The number of people that rent versus own.

When the buildings in the area were constructed.

The number of children at home for the given age ranges.

The occupations of the people living here.

Tax Assessment

Year Amount % Change
2024 $779,600 ---
2023 $720,100 ---
2022 $232,400 ---
2021 $224,300 ---
2020 $221,900 ---
2019 $223,500 ---
2018 $292,700 ---
2017 $292,700 ---
2016 $286,400 ---
2015 $277,900 ---
2014 $569,400 ---
2013 $281,700 ---
2012 $279,400 ---

Maps

Mortgage Inquiries

Last Updated On: 9/14/2025 7:58:46 PM (UTC)