10 Inglis Place, Truro, (MLS® 202529566) REMAX NOVA
Google Play iOS Google Play iOS

10 Inglis Place, Truro

4294 sqft
$495,000 For Sale

Description

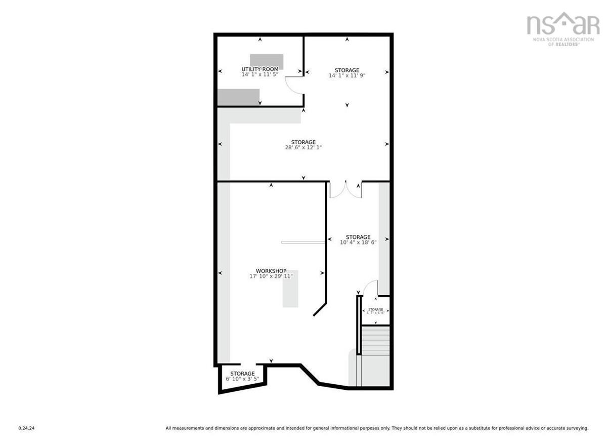
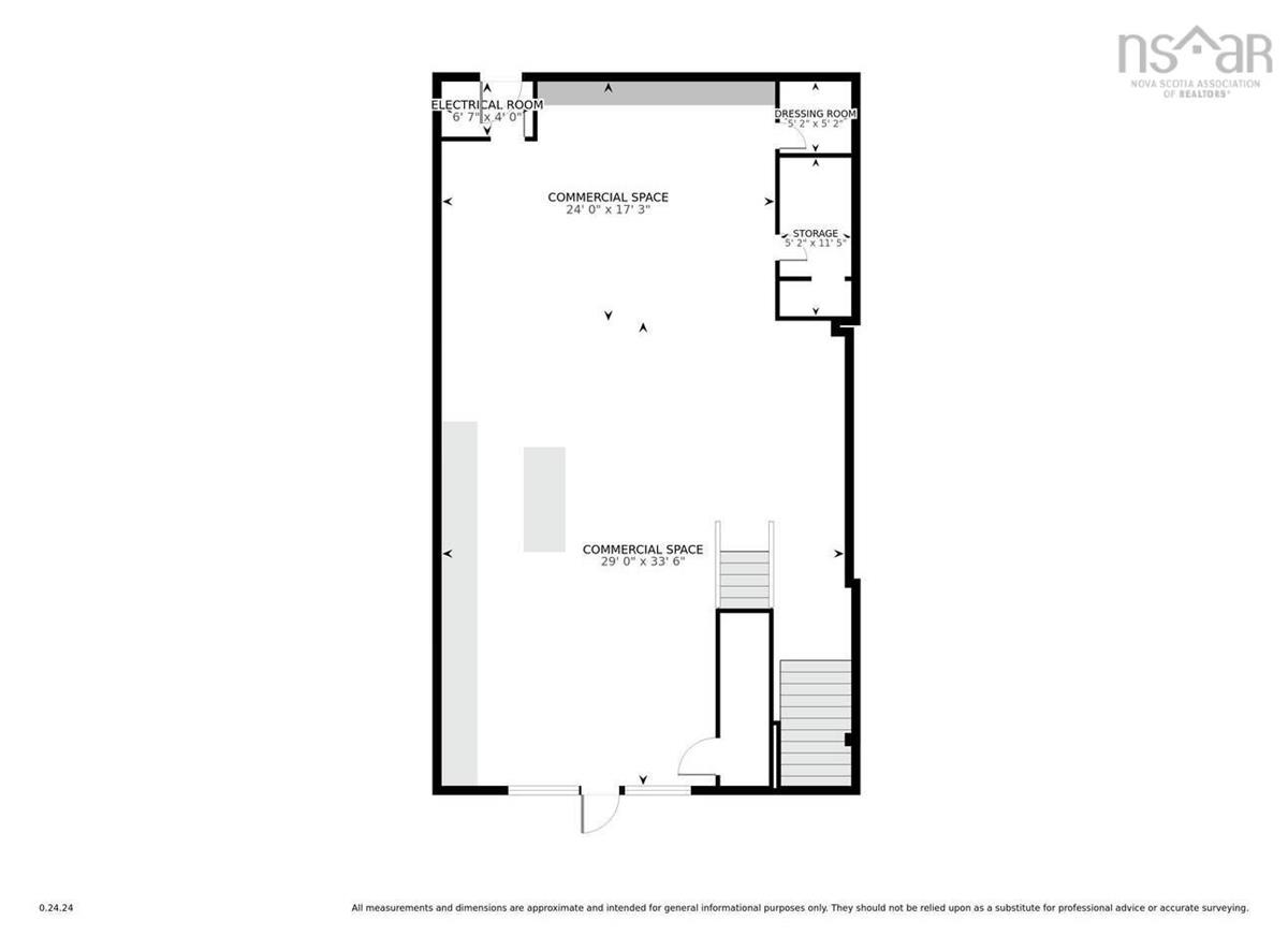
Beautiful Heritage Retail / office building in Downtown Truro. Inglis Place has been a go-to location for unique retail and to experience the small town shopping feel unique to the maritimes. The grade level and 2nd floor consist of over 3100ft2 of actual floor area, with the lower basement level adding another 1600ft2 of space.The full basement is perfect for storage or potentially further retail or business uses. Upgrades over the past couple if years have included replacing the boiler, installing a fibreglass oil tank, new siding, new vinyl windows, 25-year warrantied roofing membrane installed in 2020, and interior cosmetic upgrades in new flooring & lighting fixtures. Floor plans for each floor are included in the pictures as part of the listing.

Listing Details

Address
10 Inglis Place, Truro, B2N 4B4

Status
ACTIVE
Listing Price
$495,000
MLS®
202529566
Type
n/a
Style
---
Square Footage (MLA)
3,380  ft2
Total Fin SqFt (TLA)
4,294  ft2
PID
20179198

Water
Municipal
Sewer
---
Utilities
Cable,Electrical,Municipal Water,Telephone

Building Specifications

Foundation Type
---
Roof
Rolled
Exterior Finish
---
Flooring
Concrete,Wood
RE/MAX Commercial

Garage & Parking

Garage
N
Details
---

Inclusions & Exclusions

Inclusions
All fixtures in the space are included in the purchase price

Sales History

Demographic Data

Demographic data is based on the dissemination area that contains the listing parcel . Dissemination Areas are small areas composed of one or more neighbouring dissemination blocks. All of Canada is divided into dissemination areas. Data source: Environics Analytics via ArcGIS Online, 2021

Population Size

453

Median Age

41.7

Avg Household Size

1.6

Avg House Income

$51K

The number of people for each age range.

How the population of this area is expected to change.

The highest level of education obtained by people within this area.

The maritial status of the people in this area.

The average household income within this area.

The number of people that rent versus own.

When the buildings in the area were constructed.

The number of children at home for the given age ranges.

The occupations of the people living here.

Tax Assessment

Year Amount % Change
2024 $173,200 ---
2023 $159,400 ---
2022 $153,500 ---
2021 $157,700 ---
2020 $168,100 ---
2019 $172,100 ---
2018 $116,000 ---
2017 $112,500 ---
2016 $110,800 ---
2015 $111,000 ---
2014 $222,000 ---
2013 $108,000 ---
2012 $106,200 ---

Maps

Last Updated On: 12/18/2025 6:15:07 PM (UTC)