479 Goodwin Road, Lorneville, (MLS® 202527069) REMAX NOVA
Google Play iOS Google Play iOS

479 Goodwin Road, Lorneville

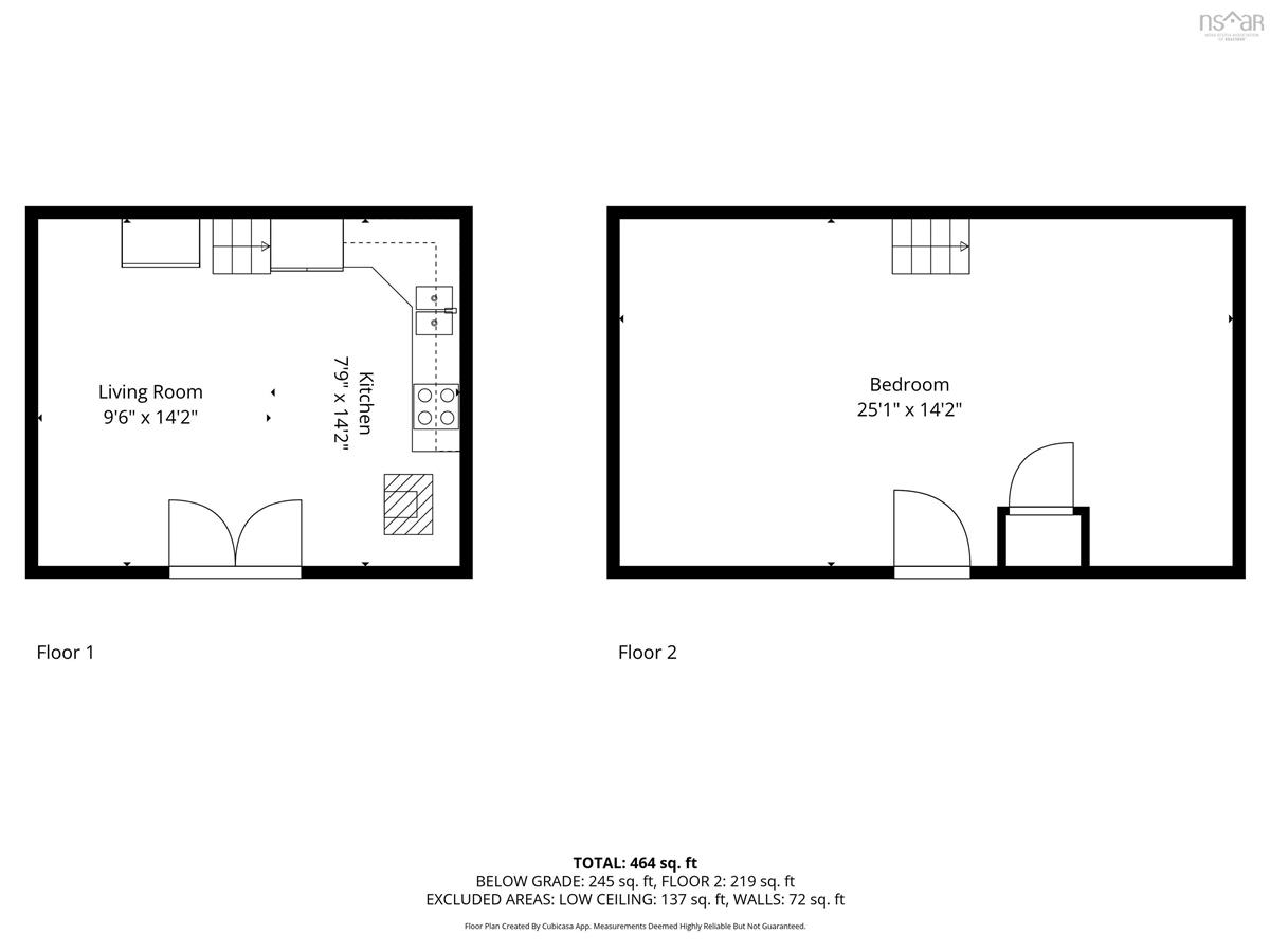
1100 sqft
$849,900 For Sale

Description

On a crisp November morning, you can hear only the soft crunch of fine gravel under your boots as you walk over a mile of private roads through this breathtaking landscape. A vast 2-acre pond reflects the clear Maritime sky, and fenced pastures stretch in every direction. Welcome to this 234-acre farm; consisting of rolling pastures, hay fields, and nearly 200 acres of mixed woodland (150 acres was cut 10 years ago) perfect for agricultural ventures and recreational dreams. Formerly a successful trail riding business, the property includes two charming log cabins (one with a washroom) , a well-equipped barn, a two-storey garage, and additional lean too, 3 paddocks for farm animals and much more. Best of all, Nova Scotia’s pristine sandy beaches are just minutes away, offering a unique blend of farm life and coastal living, and community access just at the end of Goodwin Lane! A remarkable property with unmatched potential, whether you envision continuing the trail riding business, establishing a private equestrian retreat, or simply escaping to your own sanctuary in nature.

Listing Details

Address
479 Goodwin Road, Lorneville, B4H 3X9

Status
ACTIVE
Listing Price
$849,900
MLS®
202527069
Type
n/a
Style
---
Square Footage (MLA)
1,100  ft2
Total Fin SqFt (TLA)
1,100  ft2
PID
25109141

Water
Well
Sewer
---
Utilities
---

Building Specifications

Foundation Type
---
Roof
Metal
Exterior Finish
---
Flooring
Wood,Other
RE/MAX Commercial

Garage & Parking

Garage
Y
Details
2 Big Barns

Sales History

Demographic Data

Demographic data is based on the dissemination area that contains the listing parcel . Dissemination Areas are small areas composed of one or more neighbouring dissemination blocks. All of Canada is divided into dissemination areas. Data source: Environics Analytics via ArcGIS Online, 2021

Population Size

509

Median Age

63.4

Avg Household Size

1.9

Avg House Income

$79K

The number of people for each age range.

How the population of this area is expected to change.

The highest level of education obtained by people within this area.

The maritial status of the people in this area.

The average household income within this area.

The number of people that rent versus own.

When the buildings in the area were constructed.

The number of children at home for the given age ranges.

The occupations of the people living here.

Tax Assessment

Year Amount % Change
2024 $95,100 ---
2023 $72,500 ---
2022 $64,600 ---
2021 $61,700 ---
2020 $61,600 ---
2019 $62,600 ---
2018 $62,400 ---
2017 $62,500 ---
2016 $65,600 ---
2015 $66,800 ---
2014 $135,000 ---
2013 $67,200 ---
2012 $56,500 ---

Maps

Last Updated On: 11/3/2025 2:17:25 AM (UTC)